Wohnobjekt

4.5-Zi. Maisonette-Gartenwohnung - Einfamilienhaus-Feeling

CHF 1'590'000

 | 

135 m²

 | 

4.5 Zimmer

Lettenweg 47, 4123 Allschwil

4.5-Zi. Maisonette-Gartenwohnung - Einfamilienhaus-Feeling - Karte
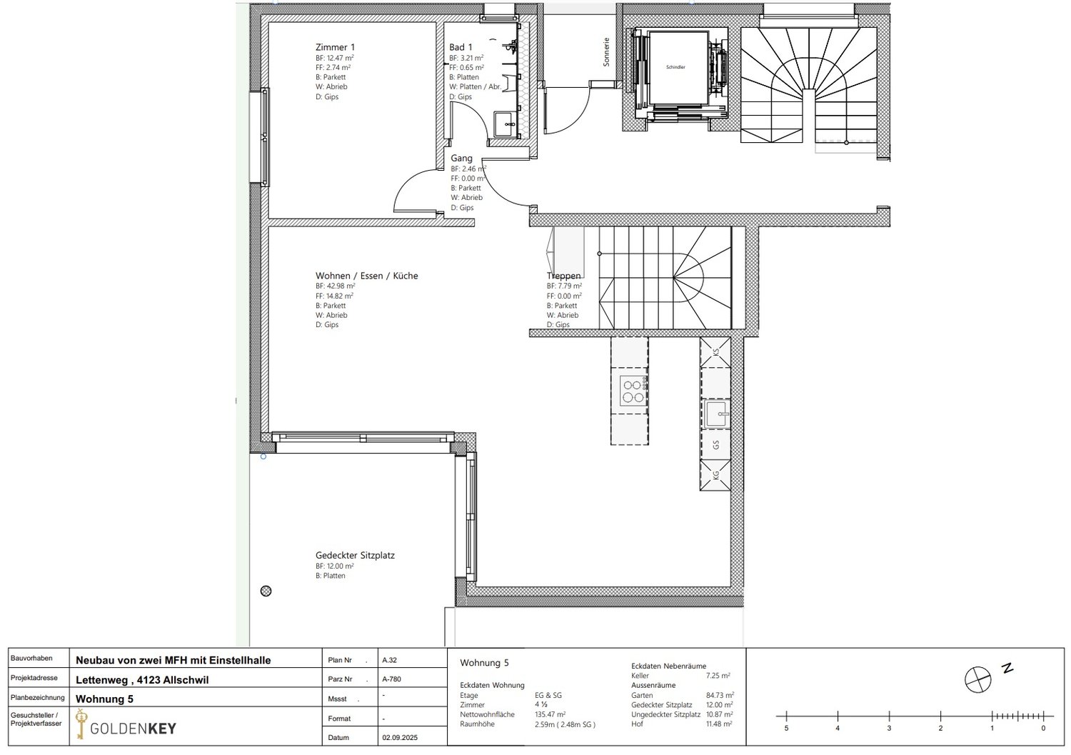
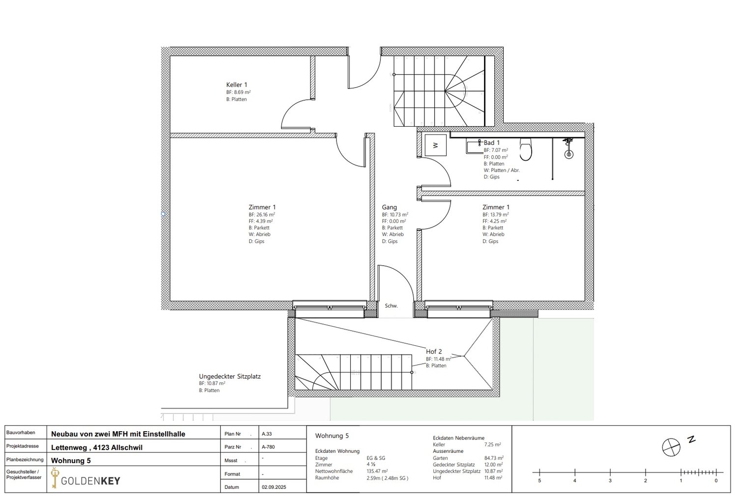
Für die Besichtigung: Bitte füllen Sie das Kontaktformular aus - Sie erhalten direkt per E-Mail das hochwertige Exposé sowie alle Informationen zur Besichtigung der Pläne und zum weiteren Ablauf.Beschreibung des Objekts: Die 4.5-Zimmer Maisonette-Gartenwohnung W5 im Neubauprojekt «The Letten» verbindet die Grosszügigkeit eines Einfamilienhauses mit den Vorzügen eines modernen Neubaus. Auf zwei Ebenen und rund 135 m2 Wohnfläche entsteht ein Wohngefühl mit viel Privatsphäre, grosszügigen Raumverhältnissen und direktem Bezug zum eigenen Garten.Der private Garten mit Sitzplatz erweitert den Wohnraum harmonisch nach draussen und schafft zusätzlichen Lebensraum für entspannte Stunden im Freien. Die durchdachte Aufteilung über zwei Etagen sorgt für eine natürliche Trennung von Wohnen und Rückzug und vermittelt ein Wohngefühl, das dem Leben im Einfamilienhaus angenehm nahekommt.Highlights-4.5-Zimmer Maisonette-Gartenwohnung-ca. 135 m2 Wohnfläche auf zwei Ebenen-Privater Garten mit ca. 75 m2 und Sitzplatz-Zusätzlicher Hofbereich / Patio-3 Schlafzimmer-2 Badezimmer-Wärmepumpe & Photovoltaikanlage-Direkter Liftzugang-Eigenes Kellerabteil-Einstellhallenplatz (separat für CHF 45000 erhältlich)Da sich das Projekt aktuell in der Realisierung befindet, haben Käuferinnen und Käufer die Möglichkeit, den Innenausbau individuell mitzugestalten. Von der Auswahl hochwertiger Materialien bis zur Konfiguration der Küche können Details nach persönlichen Vorstellungen abgestimmt werden.Allschwil zählt zu den gefragtesten Wohnlagen im Raum Basel. Das Bachgraben-Areal sowie die Basler Innenstadt sind in wenigen Minuten erreichbar. Gleichzeitig bietet die Umgebung Ruhe, hohe Wohnqualität und eine ausgezeichnete Infrastruktur mit Schulen, Einkaufsmöglichkeiten und Naherholungsgebieten in unmittelbarer Nähe.Verkaufsstand: Bereits mehrere Einheiten verkauft.Angaben zum Objekt:Waschen: In der Wohnung.Waschmaschine, Tumbler, WaschtrocknerEsszimmer: Kühlschrank, Kochherd, Backofen, Dampfabzug, Geschirrspüler, KochfeldBad: Dusche, Spiegelschrank, Ventilator, 2 BadezimmerTelekommunikation: Glasfaser Internet, Netzwerk-SteckdosenBesonderheiten: Eigener Kellerabteil, TerrasseLage auf dem Stockwerk: RechtsBeschreibung Gebäude: The Letten umfasst zwei moderne Wohngebäude mit klarer Architektur und hochwertiger Bauweise. Eine ruhige Lage, grüne Umgebung und kompakte Struktur schaffen ein angenehmes, familienfreundliches Wohnumfeld.Angaben zum Gebäude: Art der Heizung: WärmepumpeMaterial des Fußbodens: Hochwertiger ParkettBesonderheiten: Aufzug, Garage, Kinderfreundlich, Spielplatz, Ruhiges ViertelUmgebung: Öffentliche Verkehrsmittel 400mGrundschule 110mEinkaufen 350mKindergarten 350m

Verfügbarkeit

Bezugstermin:
1. April 2027

Kosten

Kaufpreis:
CHF 1'590'000

Angaben

Objektkategorie
Eigentum
Objektreferenz
a06ea7e9-79ff-43e6-bb7c-255df5c9e243
Adresse
Lettenweg 47
PLZ/Ort
4123 Allschwil
Region
Arlesheim
Wohnfläche
135 m²
Anzahl Zimmer
4.5
Etage
EG
Baujahr
2027

Merkmale und Ausstattung

Balkon
Lift
Garage
Kinderfreundlich

Kontakt

  • G. & P. Spaini KLG
  • St. Jakobstrasse 10, 4133, Pratteln
  • Nummer Anzeigen

Auch inseriert auf:

homegate.ch