Wohnobjekt

Wohnen im Baumgart/ 10 Velominuten vom Bahnhof Zofingen

CHF 850'000

 | 

112 m²

 | 

4.5 Zimmer

4800 Zofingen

Wohnen im Baumgart/ 10 Velominuten vom Bahnhof Zofingen - Karte
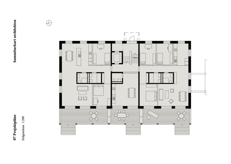
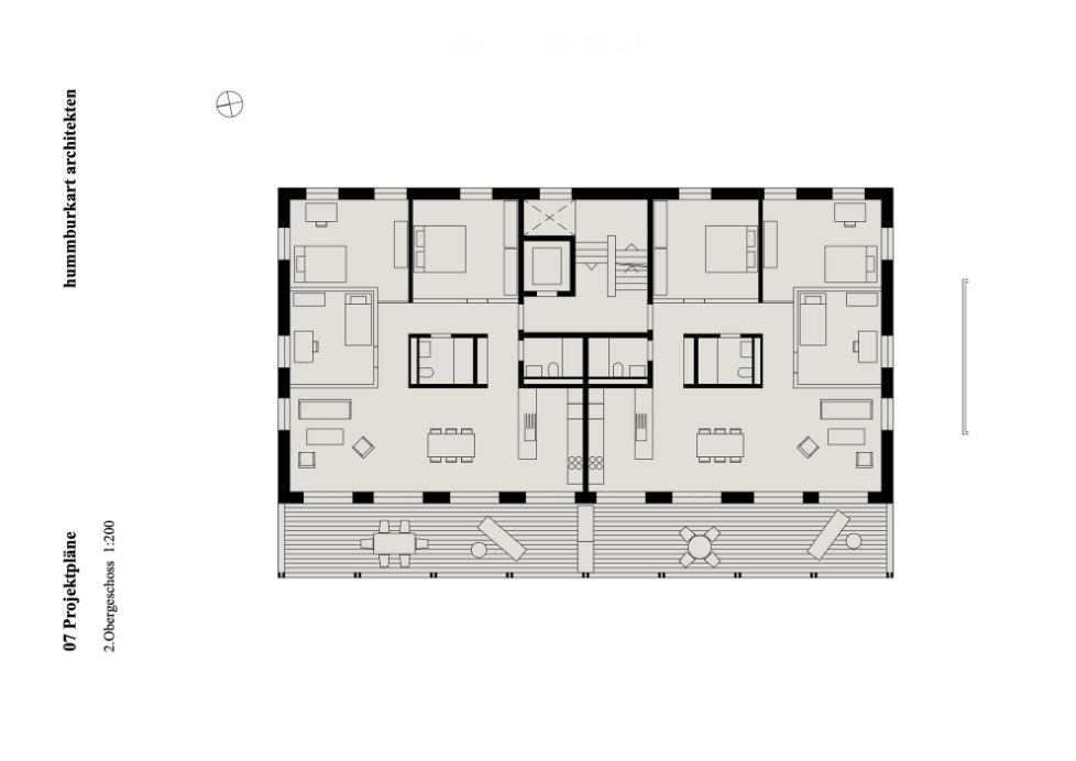
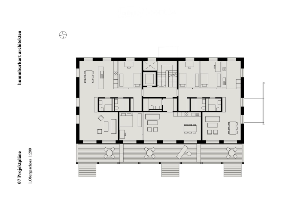
Das neue Gemeinschaftshaus bietet insgesamt 8 Eigentumswohnungen Platz. Von der 3 1/2 und 4 1/2 Zimmer Wohnungen. Dabei sind alle Wohnungen hindernisfrei über das luftige, zentrale Treppenhaus samt Lift erschlossen. Dieses führt bis ins Untergeschoss zur Tiefgarage und den Kellerräumen. Ergänzt wird das Raumangebot durch einen multifunktionalen Gemeinschaftsraum im Erdgeschoss.
Die wohl proportionierten Wohnungsgrundrisse schaffen Grosszügigkeit auf angemessener Fläche und richten sich nach dem Sonnenverlauf aus. Die Wohnungen organisieren sich um einen zentralen Kern, welcher die Nasszellen und Garderoben aufnimmt. Um diesen herum sind die Tag- und Nachträume angeordnet. Dabei sind die Wohn-, Essbereiche und die Küchen als fliessende Raumlandschaften geformt und geniessen Belichtung über bis zu drei Seiten. Die raumhohen Fenster, holen den Aussenraum in die Zimmer und fluten die Räume mit Tageslicht. Alle Wohnungen verfügen über einen üppigen Balkon in der Laubenschicht im Westen, mit Blick über die Wikoner „Matte“. Die Wohnungen im Erdgeschoss und der Gemeinschaftraum verfügen über einen direkten Zugang von der Terrasse in den Garten.
Technisch und ökologisch ist das Haus auf der Höhe der Zeit. In zeitgenössischer Holzbauweise erstellt, nutzt das Haus nicht nur die ökologischen Vorteile des nachwachsenden Naturbaustoffs. Auch im Innenraum zeigt sich der Holzbau und strahlt Wärme und Behaglichkeit aus und trägt so zu einem angenehmen und „heimeligen“ Wohnklima bei. Selbstverständlich wird auch den höchsten Ansprüchen an die Wärme- und Schalldämmung nachgekommen. So entsteht zusammen mit der Erdsonenheizung ein zukunftsfähiges Gebäude. Abgerundet wird dieses System mit einer ganz flächigen Fotovoltaik-Anlage auf den Dachflächen.
Die Ausstattung und Materialisierung der Wohnungen ist robust, naturnah, funktionell und orientiert sich am mittleren Ausbaustandard.
Das Projekt befindet ich in der Vorprojektphase und zielt auf eine baldige Baueingabe ab. Die Wohnungen sollen ab ca. 2027 bezugsbereit sein. Für weitere Informationen melden Sie sich bei hummburkart architekten.
https://hummburkart.ch/aktuell

Kosten

Kaufpreis:
CHF 850'000

Angaben

Objektkategorie
Eigentum
Objektreferenz
dbb08e5a-74d6-45e8-9b5b-c1e96467587d
PLZ/Ort
4800 Zofingen
Region
Zofingen
Wohnfläche
112 m²
Anzahl Zimmer
4.5
Etage
2
Baujahr
2026

Merkmale und Ausstattung

Balkon
Lift
Garage
Schöne Aussicht
Parkplatz
Kinderfreundlich
Rollstuhlgängig

Kontakt

Peter Humm
  • Peter Humm
  • LAYF GmbH
  • gibt Ihnen gerne Auskunft.
  • Nummer Anzeigen

Auch inseriert auf:

homegate.ch