Wohnobjekt

Terrassenhausprojekt 4TH mit Baubewilligung und Landparzelle

CHF 1'450'000

 | 

162 m²

 | 

4.5 Zimmer

Grubenweg 16, 5610 Wohlen AG

Terrassenhausprojekt 4TH mit Baubewilligung und Landparzelle - Karte
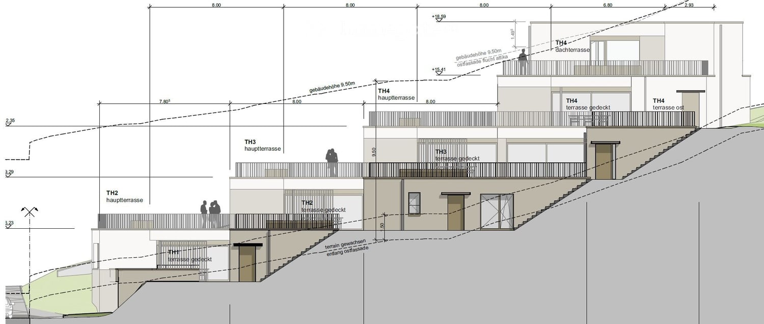
Wir verkaufen am Grubenweg 16 in 2540 Grenchen unser Terrassenhausprojekt mit 4 Terrassenhäuser inkl. Baubewilligung sowie das dazugehörende Grundstück. Es sind alle Bauabklärungen getroffen. Mit dem Neubau kann nach Abriss des bestehenden Hauses begonnen werden. Die Projektarbeit bis zur Baubewilligung wurde durch die Architektengruppe Bircher Roth von Arx AG, domiziliert in Aarau umgesetzt. Das Architekturbüro ist spezialisiert auf Terrassenhäuser.Das Projekt umfasst:Tiefgarage mit 10 Auto Abstellplätzen inkl. Abstellplätze für Fahrräder etc.4 Terrassenhäuser in unterschiedlicher Grösse:4 ½ Zi. Terrassenhaus 1 HNSF 163 m2, Terrasse 23 m25 ½ Zi. Terrassenhaus 2 HNSF 172 m2, Terrasse 115 m24 ½ Zi. Terrassenhaus 3 HNSF 162 m2, Terrasse 130 m24 ½ Zi Terrassenhaus 4 HNSF 137 m2, Terrasse 180 m2Die ganze Überbauung ist behindertengerecht konzipiert. Die Terrassenhäuser sind mit Tiefgarage und Lift direkt erschlossen. Jedes Terrassenhaus hat seine eigene Wärmepumpe (Erdsondenbohrung). Jede Einheit besitzt Neben- und Kellerräume mit direktem Zugang in die Wohnräume (im eignen Terrassenhaus).LageDie 4 Terrassenhäuser befinden sich am Jura Südfuss mit schöner Aussicht auf die Berner Alpen in einem sehr ruhigen und sonnigen Quartier. In unmittelbarer Nähe, bzw. am Rande des Projektes erstreckt sich das weitläufige Naherholungsgebiet des Jura mit dem bekannten Grenchenberg.Die Busshaltestelle ist in wenigen Schritten bequem erreichbar. Die Preisangabe versteht sich als Richtpreis und wird im Verkaufsprozess schlussendlich finalisiert.Ernsthaften Interessenten können weitere Details des Projektes bei uns nachfragen.

Kosten

Kaufpreis:
CHF 1'450'000

Angaben

Objektkategorie
Eigentum
Objektreferenz
0bd260a4-88f9-45e5-8240-34dce4a873d9
Adresse
Grubenweg 16
PLZ/Ort
5610 Wohlen AG
Region
Bremgarten
Wohnfläche
162 m²
Anzahl Zimmer
4.5

Kontakt

  • Jetmir

Auch inseriert auf:

homegate.ch