Wohnobjekt

Top-Kapitalanlage : Eine der schönsten Wohnungen im Fricktal - gut vermietet mit 3,2 % Rendite!

CHF 820'000

 | 

112 m²

 | 

4.5 Zimmer

5063 Wölflinswil

Top-Kapitalanlage : Eine der schönsten Wohnungen im Fricktal - gut vermietet mit 3,2 % Rendite! - Karte
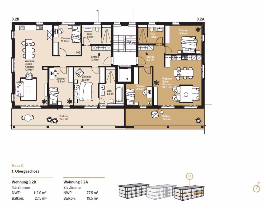
Grundsolides Investment mit beachtlichen 3,2 % Rendite! Die Wohnüberbauung Sonnenpark-Woelflinswil wurde gerade fertig gestellt und die meisten Wohnungen wurden bereits bezogen. Die hier zum Verkauf stehende Wohnung im 1. Obergeschoss befindet sich im Haus C und wurde gerade vermietet. Meiteinnahmen: Miete mtl : 2.300,--Miete = jährlich CHF 27.600,-- Gesamtkaufpreis : Wohnung CHF 820.000,-- + TG-Stellplatz CHF 35.000,-- = total CHF 855.000,-- Gesamtmiete p.a. CHF 27.600,-- = 3,2 % Weitere Objektinformationen: Die hier angebotene 4,5-Zimmer-Wohnung befindet sich im 1. Obergeschoss - "der Beletage" - eines topmodernen 6-Familienhauses. Die Wohnung ist Richtung Bach und Wald orientiert, ruhig gelegen, sehr gut besonnt und bietet freie Sicht in die Natur. Wenn es draussen warm genug ist können die Bewohner zudem das Leben auf dem riesigen überdachten Balkon geniessen. 2 Bäder - eins davon als Ensuitebad im Elternbereich - sorgen für Privatsphäre und Lebensqualität. Die lichtdurchfluteten Wohnräume mit moderner Einbauküche und geschmackvollen Eicheparkett sorgen für ein behagliches und komfortables Wohngefühl. Dieses Inserat enthält Bilder Originalbilder der Wohnung. Die Wohnung verfügt auch über einen eigenen Waschturm mit Waschmaschine und Tumbler. Der Kaufpreis dieser Wohnung ist bankgeprüft und eine Finanzierung ist bereits mit 20 % Eigenkapital möglich. Um Sie bei der Realisierung Ihres Traums vom eigenen Zuhause zu unterstützen haben wir einen kostenlosen Finanzierungsservice geschaffen der Sie auf Wunsch gerne unterstützt. Der Ort Der beschauliche Ort Wölflinswil - mit seinen knapp 1000 Einwohnern - befindet sich ca. 8 km vom Autobahnanschluss der A3 in Frick entfernt. Die Agglomerationen Zürich und Basel sind somit rasch erreichbar (Basel 41, Zürich 46 Minuten). Die Anbindung an den öffentlichen Verkehr erfolgt durch die Postautolinie, welche von Aarau über das Benkerjoch nach Frick führt und regelmässig verkehrt. In Frick gibt es auch einen Bahnhof. Aarau ist mit dem Auto bereits in knapp 20 Minuten erreichbar. Im Dorf befinden sich diverse Einkaufsmöglichkeiten. Ein Bancomat und eine Postfiliale im Volg sind ebenfalls vorhanden. Der Kindergarten und die Primarschule sind in Wölflinswil angesiedelt, der Besuch der Oberstufe erfolgt in Gipf-Oberfrick resp. Frick. Die nächstgelegene Kantonsschule befindet sich in Aarau. Freizeitangebot Eine Vielzahl von Vereinen eröffnet einerseits ein breites Angebot an Betätigungsmöglichkeiten und trägt andererseits dazu bei, dass das Dorfleben lebendig und abwechslungsreich bleibt, sowie kulturell bereichert wird. Im Sommer lädt das Freibad zum gemütlichen Verweilen ein. Möglichkeiten zur Freizeitgestaltung gibt es in der näheren Umgebung zuhauf. Wandern und biken kann man hier «ab Haustüre». Wir hoffen, dass wir Ihr Interesse geweckt haben und freuen uns über Ihre Kontaktaufnahme. Rufen Sie uns einfach kurz an - wir freuen uns auf Sie! Ihr Der-Makler-Team

Verfügbarkeit

Ab Sofort

Kosten

Kaufpreis:
CHF 820'000

Angaben

Objektkategorie
Eigentum
Objektreferenz
961bfdf5-dffe-449d-8c2f-5a485707b815
PLZ/Ort
5063 Wölflinswil
Region
Laufenburg
Wohnfläche
112 m²
Anzahl Zimmer
4.5
Etage
1
Baujahr
2025

Merkmale und Ausstattung

Balkon
Lift
Garage
Schöne Aussicht
Kinderfreundlich
Rollstuhlgängig

Kontakt

  • Lassak GmbH
  • Hirschparkweg 2H, 4800, Zofingen
  • Nummer Anzeigen

Auch inseriert auf:

homegate.ch