Wohnobjekt

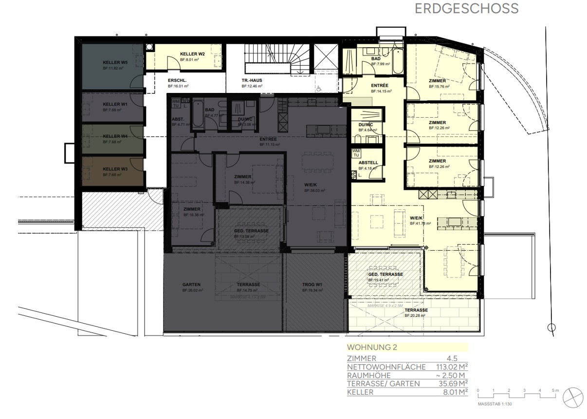
4.5-Zimmer-Wohnung (Nr. 2)

CHF 1'280'000

 | 

4.5 Zimmer

Arkadenweg 3, 5417 Untersiggenthal

4.5-Zimmer-Wohnung (Nr. 2) - Karte
Am sonnigen Südhang von Untersiggenthal entsteht ein modernes Mehrfamilienhaus mit fünf hochwertigen Eigentumswohnungen, das exklusives Wohnen mit hohem Komfort und traumhafter Aussicht verbindet. Das Mehrfamilienhaus umfasst:
2 × 3.5-Zimmer-Wohnungen
2 × 4.5-Zimmer-Wohnungen
1 × 4.5-Zimmer-Attikawohnung
Highlights:
- Tiefgarage mit direktem Zugang zum Haus
- Alle Wohnungen rollstuhlgängig und barrierefrei
- Lift von der Tiefgarage bis ins Attikageschoss
- Attraktive Aussichtslage mit Blick ins Grüne
Wir freuen uns auf unser Bauprojekt an einzigartiger Lage in Untersiggenthal und darauf, Sie im Kauf einer tollen Immobilie begleiten zu dürfen.

Kosten

Kaufpreis:
CHF 1'280'000

Angaben

Objektkategorie
Eigentum
Objektreferenz
d04bf54b-bb98-40a1-ab6e-24eeae6c4459
Adresse
Arkadenweg 3
PLZ/Ort
5417 Untersiggenthal
Region
Baden
Anzahl Zimmer
4.5
Etage
EG
Baujahr
2026

Merkmale und Ausstattung

Balkon
Lift
Garage
Schöne Aussicht
Parkplatz
Kinderfreundlich
Rollstuhlgängig
Minergie

Kontakt

  • W. Kuhn Immobilien AG
  • Bodeächer 3, 5453, RemetschwiI
  • Nummer Anzeigen

Auch inseriert auf:

homegate.ch