Wohnobjekt

Modernes 6.5-Zimmer-Doppeleinfamilienhaus in Niederwil AG

CHF 1'675'000

 | 

247 m²

 | 

6.5 Zimmer

5524 Niederwil AG

Modernes 6.5-Zimmer-Doppeleinfamilienhaus in Niederwil AG - Karte
Ein Ort zum Ankommen – Ihr neues Zuhause in der Widematte
Stellen Sie sich vor, Sie wachen auf mit Blick ins Grüne, atmen frische Landluft ein und starten den Tag mit einem Spaziergang im Naherholungsgebiet – direkt vor Ihrer Haustür. In der charmanten Wohnüberbauung Widematte in Nesselnbach entstehen zwei moderne Doppel-Einfamilienhäuser, die mehr sind als nur ein Ort zum Wohnen: Sie sind ein Ort zum Leben, Lieben und Durchatmen. Entdecken Sie dieses exklusive, moderne Doppeleinfamilienhaus. Das im Jahr 2027 fertiggestellte Neubauobjekt bietet auf 247 m² Wohnfläche höchsten Wohnkomfort für Familien.Mit 5,5/6,5 Zimmern, einem hochwertigen Innenausbau und einem Raumkonzept, das Komfort und Stil vereint, erwartet Sie hier ein Zuhause, das keine Wünsche offen lässt.
Lassen Sie sich begeistern – Ihr neues Kapitel beginnt in Nesselnbach. Ein Zuhause, das Sie nicht nur sehen, sondern spüren werden.
Das Haus überzeugt mit:
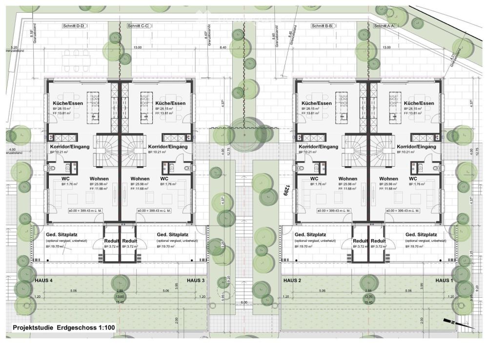
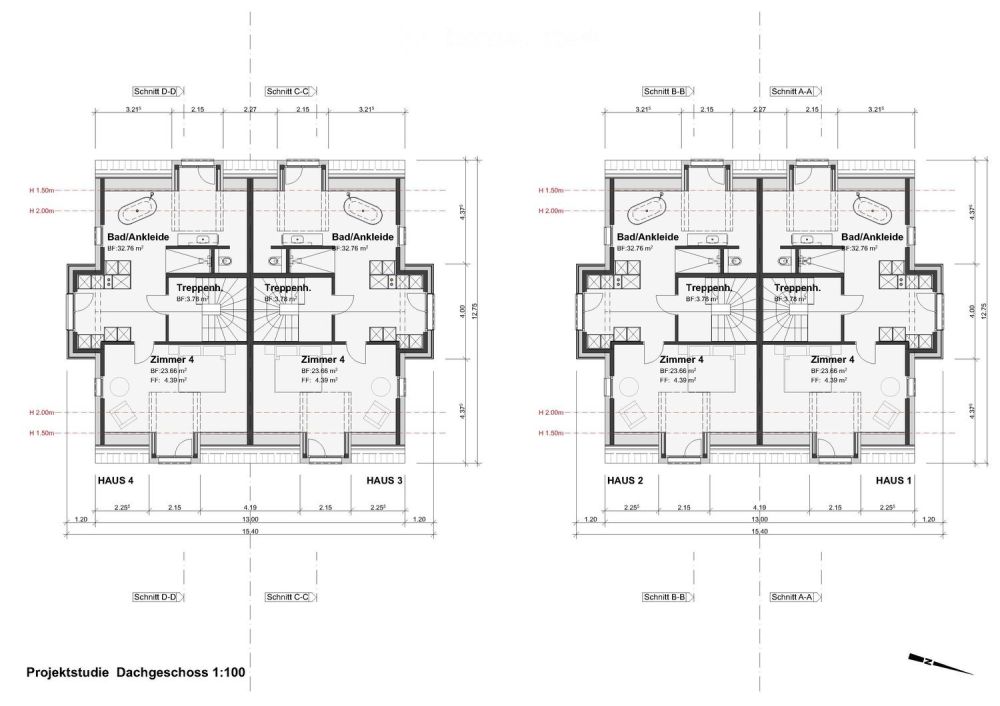
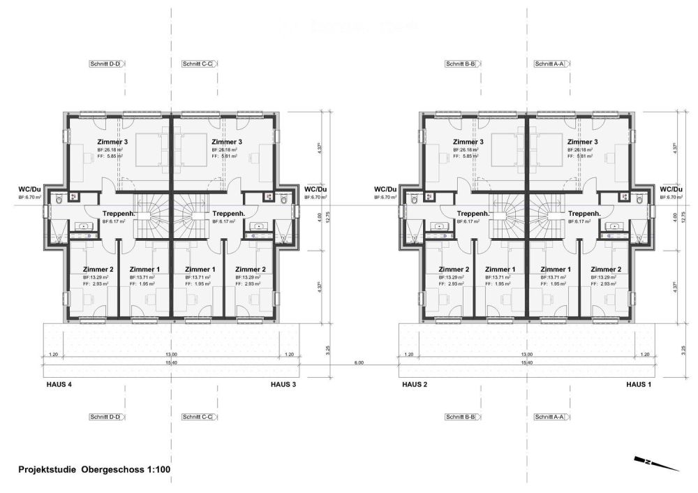
Grosszügige Raumaufteilung: 5,5/6.5 Zimmer verteilt auf 3 Geschosse bieten viel Platz für die ganze Familie
Moderne Ausstattung: Neubaustandard mit durchdachter Grundrissgestaltung
Nachhaltige Energieversorgung: Solarpaneele auf dem Dach für umweltfreundliches Wohnen
Private Aussenbereiche: Terrasse für entspannte Stunden im Freien
Eigener Garten: 391 m² Grundstücksfläche mit Gartenmöglichkeiten
Komfortable Parkmöglichkeiten: Direkter Zugang zur Doppelgarage mit Platz für 2 Fahrzeuge, sowie 2 Aussenparkplätze
Lage und Umgebung: Das Haus befindet sich in einer ruhigen Wohngegend und profitiert von einer sonnigen Lage. Die Bushaltestelle "Nesselnbach Mitteldorf" ist nur 4 Gehminuten entfernt und sorgt für eine gute Anbindung an das öffentliche Verkehrsnetz und verbindet sich mit der Nähe zu Baden, Zürich und Luzern – ideal für Familien, Berufspendler und alle, die das Besondere suchen.Familien schätzen die Nähe zur Primarschule, Oberstufe Niederwil, die in 14 Minuten zu Fuss erreichbar ist.
Dieses kinderfreundliche Zuhause mit seiner ruhigen Lage und der modernen, nachhaltigen Bauweise ist perfekt für Familien, die Wert auf Qualität, Komfort und eine grüne Zukunft legen. Baustart Januar 2026 – Einziehen und wohlfühlen

Verfügbarkeit

Bezugstermin:
30. Juni 2027

Kosten

Kaufpreis:
CHF 1'675'000

Angaben

Objektkategorie
Eigentum
Objektreferenz
f1b0dda5-ae7f-44f8-a778-fa179bbbdaf0
PLZ/Ort
5524 Niederwil AG
Region
Bremgarten
Wohnfläche
247 m²
Grundstücksfläche
391 m²
Anzahl Zimmer
6.5
Baujahr
2026

Merkmale und Ausstattung

Balkon
Garage
Schöne Aussicht
Parkplatz
Kinderfreundlich

Kontakt

Auch inseriert auf:

homegate.ch