Wohnobjekt

Moderne 3.5-Zimmer Wohnung / Minergie P-Standard / gute Lage

CHF 775'000

 | 

92 m²

 | 

3.5 Zimmer

Multenrain 10, 5037 Muhen

Moderne 3.5-Zimmer Wohnung / Minergie P-Standard / gute Lage - Karte
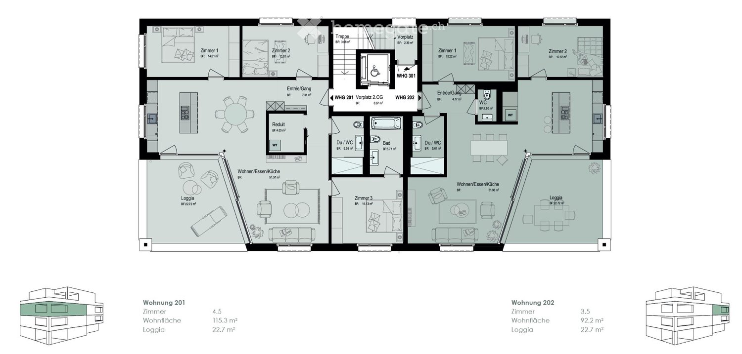
3.5-Zimmerwohnung im 2. OG zu verkaufenHighlights:- Moderner Neubau (Erstbezug 2025) mit hochwertigem Ausbau- Wohnfläche von 92 m2- Grosszügige Loggia/gedeckter Balkon von 22 m2- Raumhöhe 2.55 m- Minergie-P-Standard mit Erdsondenheizung und PV-Anlage (tiefe Nebenkosten)- Gute Lage (ruhige Sackgasse, Fussweg zum Bahnhof Muhen)- Vollausstattung mit Waschmaschine, Tumbler, Induktionsherd (integrierter Dampfabzug) etc.- Zwei Parkplätze in Tiefgarage mit vorbereitetem Elektroanschluss (für je CHF 37'500 zusätzlich, nicht im Verkaufspreis inbegriffen)- aktuell vermietet (Bruttorendite über 3%)------------Das Mehrfamilienhaus am Multenrain 10 in Muhen befindet sich in einer wenig befahrenen Tempo 30-Zone Sackgasse. Einkaufsmöglichkeiten für den täglichen Bedarf die Schule, sowie der Bahnhof sind in kürzester Gehdistanz erreichbar.Eine in die Architektur integrierte Solar-Anlage auf dem Dach gewinnt aus der Kraft der Sonne Strom. Dank dieser nachhaltigen Form der Energieerzeugung mit Photovoltaik, einer Wärmeerzeugung mittels Erdsonden-Wärmepumpe und einer energieeffizienten Bauweise mit einer bestens gedämmten Gebäudehülle und dichten, dreifach-verglasten Fenstern ist dieses Wohngebäude bestens gerüstet für eine ökologische und kostengünstige Energieversorgung. Das Gebäude wurde im MINERGIE-P-Standard gebaut und zertifiziert.Sämtliche Wohnungen sind barrierefrei von der Tiefgarage bis zum Attikageschoss erschlossen. Die Raumhöhe jeder Wohnung beträgt 2.55 m. Die Wohnung verfügt über eine eigene Waschmaschine und Trockner. Der dazugehörige Kellerraum befindet sich im Erdgeschoss, sämtliche Zugänge sind überdacht. Nördlich der Tiefgarageneinfahrt befindet sich ein Fussweg, welcher genutzt werden kann um beispielsweise auf direktem Wege zum Bahnhof zu gelangen. Verkauf ohne Makler

Kosten

Kaufpreis:
CHF 775'000

Angaben

Objektkategorie
Eigentum
Objektreferenz
ec77ea95-6ee2-45b7-9920-94ac5444b5b4
Adresse
Multenrain 10
PLZ/Ort
5037 Muhen
Region
Aarau
Wohnfläche
92 m²
Anzahl Zimmer
3.5

Kontakt

  • torri6706

Auch inseriert auf:

homegate.ch