Wohnobjekt

NEUBAU - 4.5 Zi-Terrassenwohnung Nr. 3 mit Fernsicht

CHF 1'590'000

 | 

130 m²

 | 

4.5 Zimmer

5200 Brugg AG

NEUBAU - 4.5 Zi-Terrassenwohnung Nr. 3 mit Fernsicht - Karte
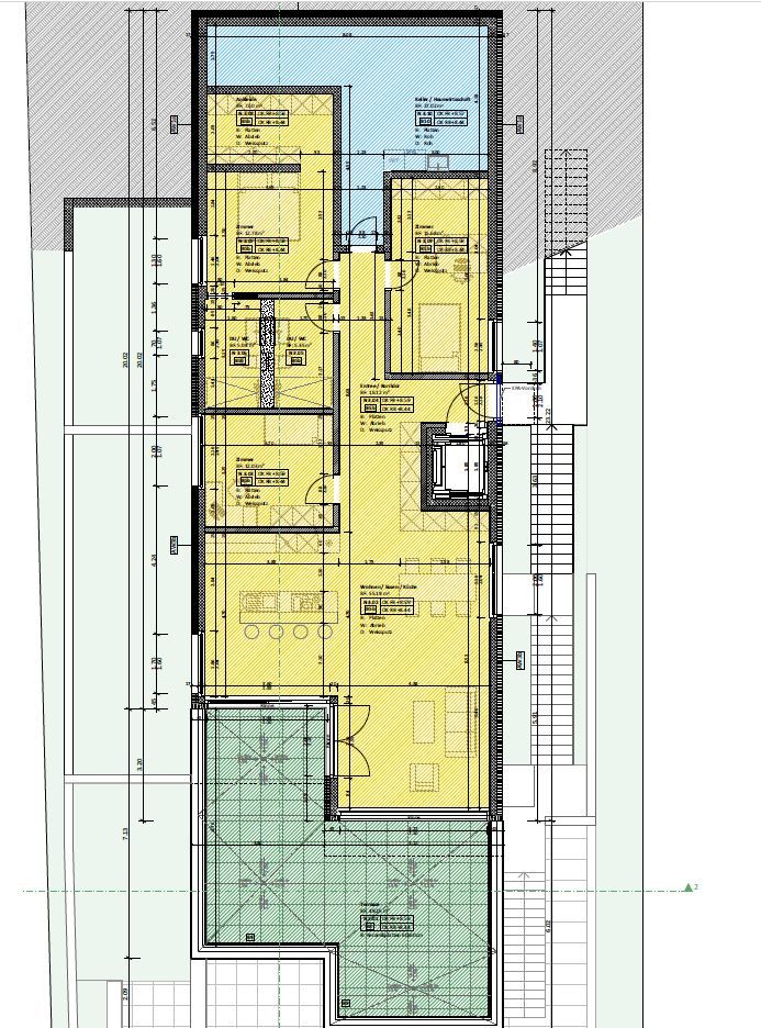
*** Baustart erfolgt - Letzte Terrassenwohnung *** Dieser architektonische Neubau auf höchstem Niveau, zeichnet sich durch sein einmaliges Design sowie die Lage hoch über der Stadt Brugg/Umiken mit Fernsicht aus. Jede der vier modernen und grosszügigen Terrassenwohnungen weist einen gedeckten Sitzplatz, sowie eine traumhafte Terrasse auf.Folgende Highlights erwarten Sie:- Wohnfläche beheizt 130 m2- Nutzfläche unbeheizt 32.7 m2- Terrassenfläche 49.2 m2- Grünflächen 26.8 m2- Gesamtfläche 238.5 m2- Bankengeprüft- Photovoltaik Anlage- Minergie-P Standard- Brugger Berg mit Fernsicht- Eigener Pneuraum in Tiefgarage- Keller/Wirtschaftsraum auf Etage- Direkter Liftzugang mit Schlüssel- Vorbereitung für Elektro Fahrzeuge- Sole/Wasser Wärmepumpe (Erdsonde)Engel & Völkers - Ihr kompetenter Partner für Immobilienverkauf.Die schmucke Stadt an der Aare befindet sich etwas oberhalb des Zusammenflusses von Aare, Reuss und Limmat. Brugg ist Zentrum des gleichnamigen Bezirks und ein bedeutender Industrie-, Gewerbe-,Dienstleistungs-und Schulstandort. Zudem verfügt Brugg über attraktive Anlagen im Sport-und Freizeitbereich und ist eine Kulturstätte mit reichhaltigem Veranstaltungsangebot und zahlreichen Sehenswürdigkeiten.Die Stadt Brugg zählt Rund 12'000 Einwohner und beheimatet über 660 Betriebe aus den drei Wirtschaftssektoren (Landwirtschaft, Industrie,Dienstleistungen), welche über 7'700 Voll- und Teilzeitangestellte beschäftigen und über 440 Lehrstellen anbieten.Wenn Sie mehr über die Liegenschaft erfahren möchten, senden wir Ihnen gerne die Dokumentation zu.

Kosten

Kaufpreis:
CHF 1'590'000

Angaben

Objektkategorie
Kauf
Objektreferenz
0a43200e-3dc1-4edd-8081-13d7339690cf
PLZ/Ort
5200 Brugg AG
Region
Brugg
Wohnfläche
130 m²
Anzahl Zimmer
4.5
Etage
3
Baujahr
2027

Merkmale und Ausstattung

Schöne Aussicht

Kontakt

  • Engel & Völkers Aarau
  • Kronengasse 2, 5000 Aarau
  • Nummer Anzeigen

Auch inseriert auf:

homegate.ch