Wohnobjekt

Müliacker Rafz - Gartenwohnung 0.1

CHF 1'220'000

 | 

120 m²

 | 

4.5 Zimmer

Chnübrächi, 8197 Rafz

Müliacker Rafz - Gartenwohnung 0.1 - Karte
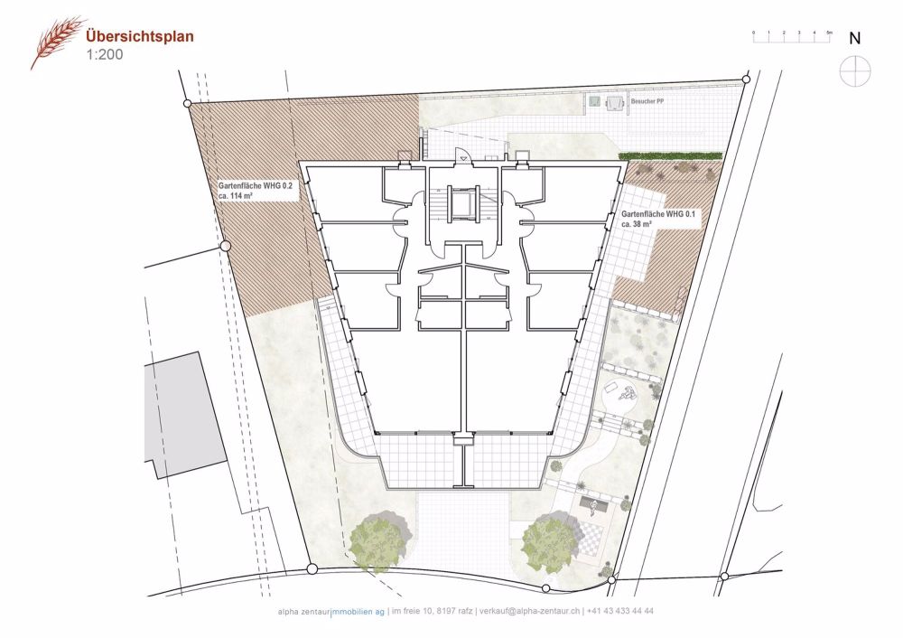
Wohnprojekt Müliacker – Exklusives Wohnen in erhöhter Lage von Rafz
Am nördlichen Dorfrand von Rafz, an ruhiger und sonniger Hanglage entlang der Quartierstrasse Chnübrächi, entsteht das Wohnprojekt Müliacker. Das gewachsene Einfamilienhaus- und Villenquartier überzeugt durch Privatsphäre, Naturbezug und eine angenehme Wohnatmosphäre.
Das Neubauprojekt umfasst vier hochwertige Eigentumswohnungen (3½–4½ Zimmer) mit grosszügigen Grundrissen, attraktiven Gartenflächen oder sonnigen Attikaterrassen sowie moderner, qualitativer Ausstattung. Ein Lift erschliesst alle Etagen bis zur Tiefgarage mit 7 Einstellplätzen und privaten Kellerräumen. Rafz bietet eine ideale Kombination aus Natur, Rebbergen und guter Infrastruktur mit Schulen, Einkaufsmöglichkeiten und schneller Anbindung nach Zürich, Schaffhausen und in die angrenzenden Regionen.
Die Baubewilligung ist rechtskräftig erteilt. Realisiert wird das Projekt durch die EG Müliacker als Bauträgerschaft.

Kosten

Kaufpreis:
CHF 1'220'000

Angaben

Objektkategorie
Eigentum
Objektreferenz
55fca5fc-fb25-46fe-8dff-a59cdd6fa1e8
Adresse
Chnübrächi
PLZ/Ort
8197 Rafz
Region
Bülach
Wohnfläche
120 m²
Anzahl Zimmer
4.5
Baujahr
2027

Merkmale und Ausstattung

Balkon
Lift
Garage
Schöne Aussicht
Parkplatz
Kinderfreundlich

Kontakt

Stephanie Siegrist
  • Stephanie Siegrist
  • alpha zentaur immobilien ag
  • gibt Ihnen gerne Auskunft.
  • Nummer Anzeigen

Auch inseriert auf:

homegate.ch