Wohnobjekt

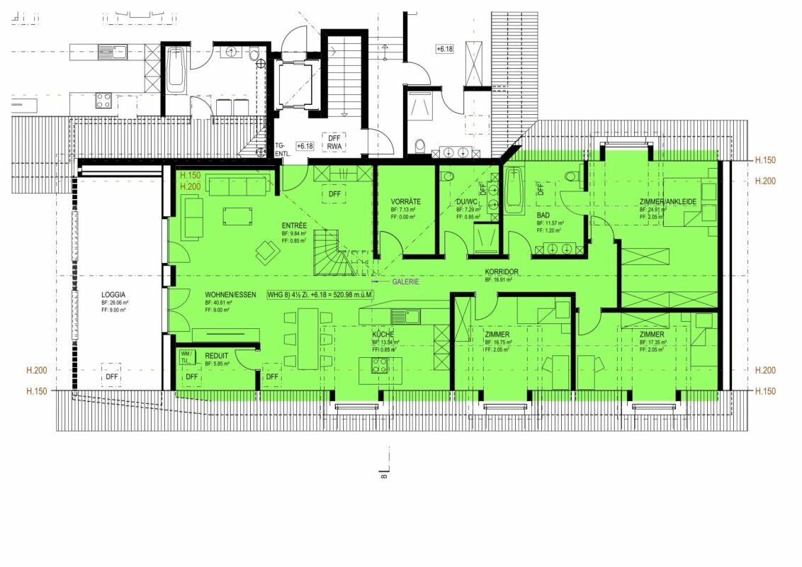
Neubau 4.5-Zimmer-Eigentumswohnung (DG mit Galerie, Nr. 8) im ländlichen Liebensberg (Gemeinde Wiesendangen)

CHF 1'460'000

 | 

186 m²

 | 

4.5 Zimmer

Liebensberg 8, 8543 Bertschikon

Neubau 4.5-Zimmer-Eigentumswohnung (DG mit Galerie, Nr. 8) im ländlichen Liebensberg (Gemeinde Wiesendangen) - Karte
Im ländlichen Liebensberg (8543 Bertschikon), zwischen Wiesendangen und Gachnang / Islikon oberhalb Gundetswil, entstehen diese 9 wunderschönen Neubau-Eigentumswohnungen angrenzend an die Landwirtschaftszone. Wer die Ruhe und Aussicht ins Grüne schätzt und trotzdem innert Kürze die Städte Winterthur und Frauenfeld erreichen will, findet hier seinen Wohntraum. Die Wohnungen befinden sich kurz vor dem Endausbau und sind voraussichtlich im September 2026 bezugsbereit.
Die Wohnungen sind mit dem Lift erreichbar (teilweise direkter Wohnungszugang). Im Untergeschoss hat es für jede Einheit einen eigenen Kellerraum (im Preis inbegriffen) und in der Tiefgarage stehen pro Wohnung mindestens 2 Parkplätze nach Wahl zur Verfügung, die dazu gekauft werden können. Tiefgaragenplätze hat es in unterschiedlicher Grösse und Anordnung. In der separaten Liste finden Sie die Verkaufspreise.
Im Untergeschoss hat es folgendes weiteres Raumangebot:
- Grosser Veloraum
- Trocknungsraum
- Technikraum
- Hauswartraum
Im Aussenbereich befinden sich die Sitzplätze der EG-Wohnungen, ein Spielplatz, eine Treppe in die Tiefgarage und 4 Parkplätze für Besucher.
Für weitere Fragen und Auskünfte steht Ihnen das Team der Roland Huber Immobilien AG sehr gerne zur Verfügung.

Kosten

Kaufpreis:
CHF 1'460'000

Angaben

Objektkategorie
Kauf
Objektreferenz
3c2793ff-29c7-41e1-a9ef-ed0919463c15
Adresse
Liebensberg 8
PLZ/Ort
8543 Bertschikon
Region
Winterthur
Wohnfläche
186 m²
Anzahl Zimmer
4.5
Etage
2
Baujahr
2026

Merkmale und Ausstattung

Balkon
Lift
Garage
Kinderfreundlich
Rollstuhlgängig

Kontakt

Roland Huber
  • Roland Huber
  • Roland Huber Immobilien AG
  • gibt Ihnen gerne Auskunft.
  • Nummer Anzeigen

Auch inseriert auf:

homegate.ch