Wohnobjekt

Immeuble de trois appartements avec autorisation de construire

CHF 420'000

 | 

323 m²

1991 Salins

Immeuble de trois appartements avec autorisation de construire - Karte
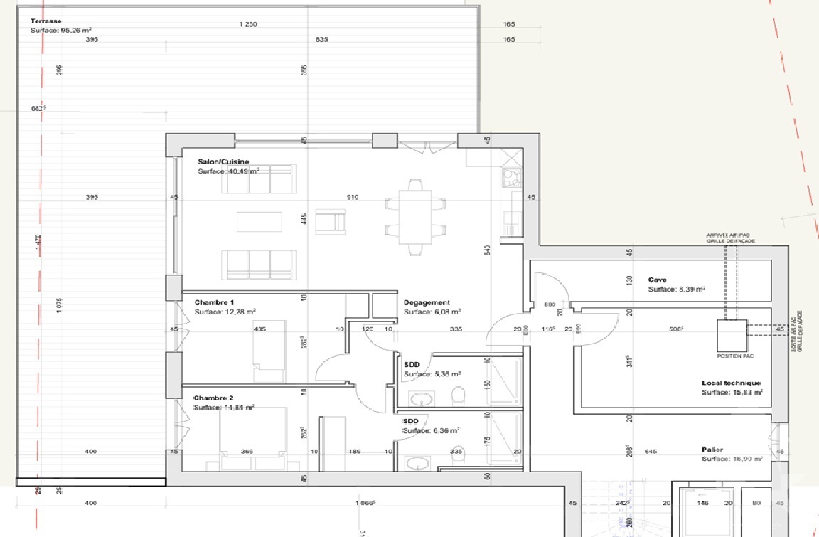
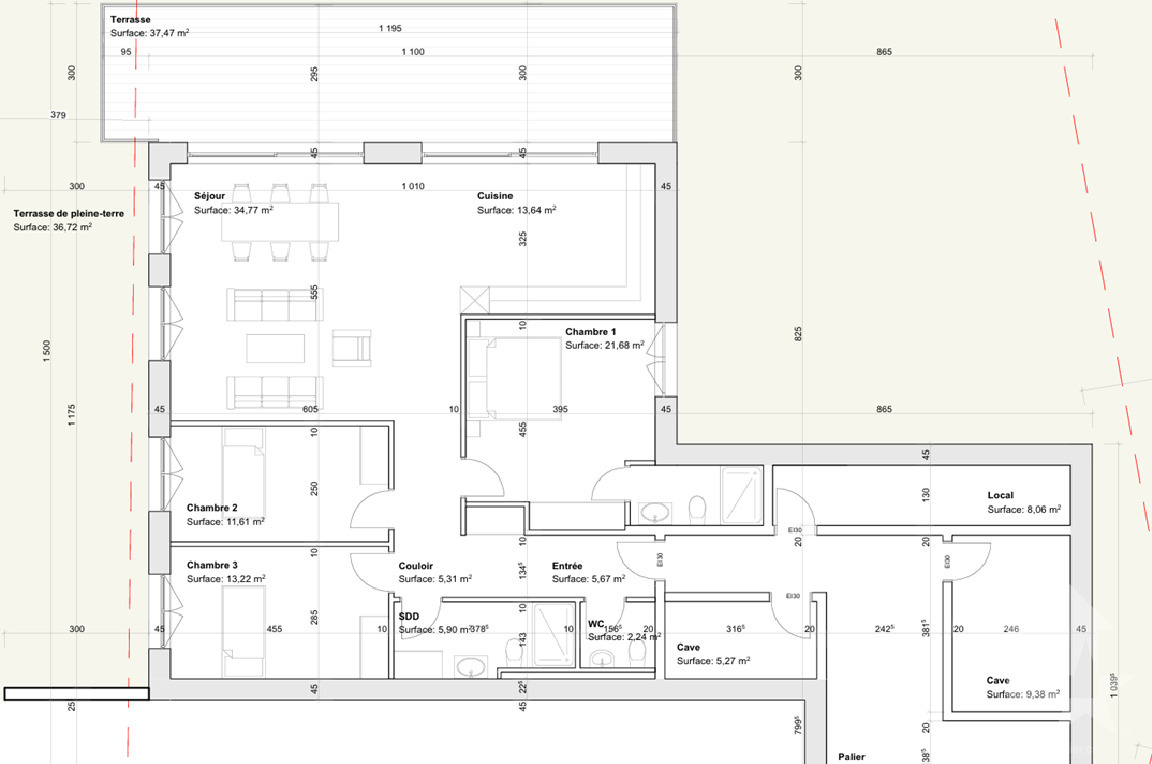
Vous rêvez d'une vue à couper le souffle tout en étant à quelques minutes de Sion ? Ce projet avec autorisation de construire est fait pour vous !Le terrain entièrement équipé et sans vis-à-vis se trouve à la fin d'une rue privée et en bordure de zone agricole, ce qui vous garantit un cadre bucolique et intimiste sans crainte de nouvelles constructions. Sion est atteignable en 10 minutes en voiture et il vous faudra 15 minutes pour rallier la piste de l'Ours.Les plans, conçus par un bureau d'architecte, proposent la construction d'un petit immeuble de trois appartements, disposés en escaliers le long de la pente pour profiter au maximum du panorama. Une imposante terrasse ceinture chaque étage, tous desservis par un ascenseur.Détail du terrain :Zone : H30 (IBUS 0.5)Altitude : 700 mSuperficie : 1'078 m2Environnement calmeEntièrement équipéSurface totale par étage :Etage - 1 : 108 m2Etage - 2 : 177 m2Etage - 3 : 208 m2Particularités :5 places de parcRoute privée sans issueAscenseurTrès grandes terrasses sans vis-à-visPossibilité d'aménager un jardinPetit plus, mais non négligeable, une parcelle agricole attenante de 1'148 m2 est incluse dans le prix globale. Cette dernière vous permettra de disposer d'un jardin, d'un verger ou même d'une aire de jeu pour les enfants. De quoi agrémenter d'une belle plus-value le terrain qui propose une vue sublime sur notre canton et sa capitale.L'autorisation a été accordée en ce début d'année 2026. Vous souhaitez construire sans tous les tracas administratifs longs et coûteux ? N'hésitez plus !Vous souhaitez obtenir des précisions, le dossier complet ? Contactez-moi par téléphone ou par E-mail et je vous renseignerai très volontiers. Je me tiens également à votre disposition pour une visite sur place.Sie träumen von einem atemberaubenden Ausblick und möchten dabei nur wenige Minuten von Sitten entfernt sein? Dann ist dieses Projekt mit Baubewilligung genau das Richtige für Sie! Das komplett erschlossene und unverbaute Grundstück liegt am Ende einer Privatstrasse und grenzt an ein landwirtschaftliches Gebiet, was Ihnen eine idyllische und ruhige Umgebung garantiert, in der Sie nicht mit Neubauten rechnen müssen. Sitten ist in 10 Minuten mit dem Auto erreichbar und die Ours-Piste in 15 Minuten.Die vom Architekturbüro entworfenen Pläne sehen den Bau eines kleinen Gebäudes mit drei Wohnungen vor, die sich terrassenförmig entlang des Hangs erstrecken, um den Panoramablick optimal zu nutzen. Eine imposante Terrasse umgibt jede Etage, die alle über einen Lift erreichbar sind. Besonderheiten des Grundstücks:Zone: H30 (IBUS 0.5)Höhe : 700 mGrundfläche: 1'078 m2Ruhige UmgebungVollständig ausgestattetGesamtfläche pro Etage:Etage - 1: 108 m2Etage - 2: 177 m2Etage - 3: 208 m2Besonderheiten:5 ParkplätzePrivate SackgasseAufzugSehr grosse Terrassen ohne NachbarnMöglichkeit, einen Garten anzulegenEin kleiner, aber nicht unwichtiger Pluspunkt ist, dass ein angrenzendes, 1'148 m2 grosses Landwirtschaftsgrundstück im Gesamtpreis inbegriffen ist. Auf diesem können Sie einen Garten, einen Obstgarten oder sogar einen Spielplatz für Ihre Kinder anlegen. Dies verleiht dem Grundstück, das einen wunderbaren Ausblick auf unseren Kanton und seine Hauptstadt bietet, einen zusätzlichen Wert.Die Baubewilligung wurde Anfang 2026 erteilt. Sie möchten bauen ohne langwierige und kostspielige...

Verfügbarkeit

Verfügbar ab:
10. April 2026

Kosten

Kaufpreis:
CHF 420'000

Angaben

Objektkategorie
Kauf
Objektreferenz
e6687312-974d-4de8-9370-30c3184ef3ea
PLZ/Ort
1991 Salins
Region
District de Sion
Wohnfläche
323 m²
Grundstücksfläche
1078 m²

Merkmale und Ausstattung

Balkon
Lift
Rollstuhlgängig

Kontakt

  • Valimmobilier SA
  • Avenue de la Gare 39, 1964, Conthey
  • Nummer Anzeigen

Auch inseriert auf:

homegate.ch