Wohnobjekt

Villa jumelée contemporaine de 5.5 pièces

CHF 1'150'000

 | 

160 m²

 | 

5.5 Zimmer

1868 Collombey

Villa jumelée contemporaine de 5.5 pièces - Karte
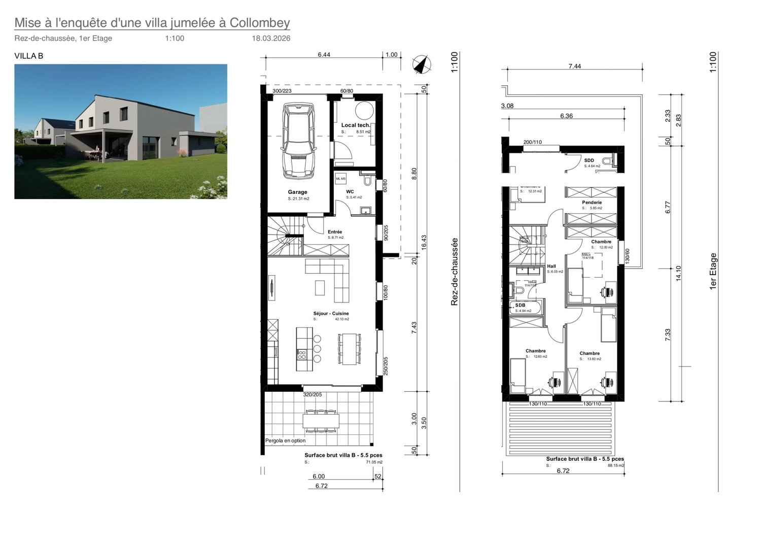
Villa jumelée contemporaine de 5.5 pièces au sein d'un petit lotissement de villas au bénéfice d'un environnement paisible. Cette maison de près de 160 m2 habitables que vous pourrez composer selon vos goûts est répartie ainsi : Rez principal - Hall d'entrée avec armoire murale - Séjour/salle à manger - Cuisine ouverte - Toilettes - Terrasse - Jardin - Local technique - Garage Étage - Suite parentale avec dressing et salle de douche - 3 Chambres - Salle de bain Stationnement - Garage - Cour de stationnement devant la maison PARTICULARITÉS - Finitions au gré du preneur - Panneaux photovoltaïques - Chauffage à distance - Emplacement pour colonne de lavage - Volume 716 m3 Cette villa représente un bien rare parfaitement adapté pour une famille souhaitant profiter du cadre de vie idéal, proche de toutes commodités. Contactez nous pour découvrir les différentes options qui s'offrent à vous sur ce remarquable projet.

Kosten

Kaufpreis:
CHF 1'150'000

Angaben

Objektkategorie
Kauf
Objektreferenz
4ca30091-f2ad-4f74-a42f-bc237d8551fa
PLZ/Ort
1868 Collombey
Region
District de Monthey
Wohnfläche
160 m²
Grundstücksfläche
543 m²
Anzahl Zimmer
5.5
Baujahr
2026

Merkmale und Ausstattung

Garage
Parkplatz

Kontakt

David GOMES
  • David GOMES
  • Kaza SA
  • gibt Ihnen gerne Auskunft.
  • Nummer Anzeigen

Auch inseriert auf:

homegate.ch