Wohnobjekt

Collombey, nouveau projet d'une villa de 5.5 pièces

CHF 1'150'000

 | 

160 m²

 | 

5.5 Zimmer

1868 Collombey

Collombey, nouveau projet d'une villa de 5.5 pièces - Karte
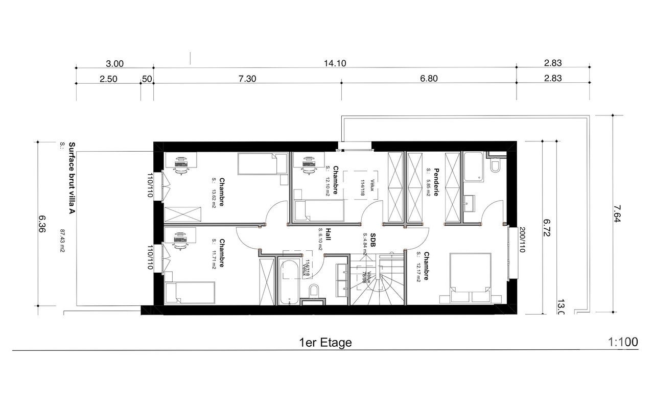
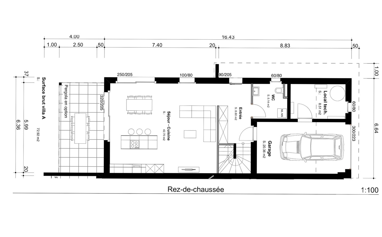
Valimmobilier SA a le plaisir de vous présenter un nouveau projet de constructions de 2 logements modernes à Collombey.Dans un sympathique quartier de Collombey, devenez propriétaire de cette villa contemporaine de 5.5 pièces à construire avec garage et jardin privatif. Le quartier est proche de toutes les activités et se trouve à moins de 5 minutes de la sortie d'autoroute de St-Triphon. Cette maison mitoyenne construite par des promoteurs de la région a de nombreux avantages et des pièces très spacieuses. En construction traditionnelle, elle est idéale pour une famille avec sa grande pièce à vivre ouverte sur le jardin, ses 3 chambres de 12 à 14 m2, sa suite parentale. Les maisons ont une surface brute de 160 m2 (sans le garage et le local technique)Le choix des finitions est au gré de l'acquéreur (cuisine, carrelage, peinture, etc). Les travaux vont débuter prochainement. Le terrain est complètement plat, les matériaux de construction et les finitions sont de qualité avec des budgets adéquats (par exemple CHF 30'000 pour la cuisine). Pour plus d'économies énergétiques, chaque maison est raccordée au chauffage à distance et équipée de panneaux photovoltaïques. Le bien bénéficie également de nombreuses places de parc comprises dans le prix.La distribution de cette villa de 716 m3 est la suivante : Rez-de-chaussée : Pièce à vivre de 42 m2 comprenant une cuisine ouverte sur la salle à manger et le séjourHall d'entrée de 8.6 m2 avec armoires muralesWC visiteur de 5.1 m2 avec espace pour colonne de lavageLocal technique de 8.5 m2Garage de 20 m2Terrasse dallée (pergola en option), jardin et places de parcA l'étage :1 suite parentale avec dressing et salle d'eau3 chambres de 11.7, 12.1 et 13.6 m2Hall de distribution 6 m2Salle d'eau de 4.8 m2 avec lavabos, baignoire et WCDisponibilités :Villa A - surface de terrain : 407 m2 - disponibleVilla B - surface de terrain : 543 m2 - disponibleRemarque : Le village de Collombey fait partie des 5 villages de la commune de Collombey-Muraz. (District de Monthey) en Valais. Canton qui est renommé pour ses nombreux avantages sociaux et ses taxes modestes (caisse-maladie, impôt sur les véhicules, prestation en capital et autres impôts). Cette commune offre de nombreux avantages pour les familles (écoles enfantines, primaires et cycle d'orientation, crèche-garderie, clubs sportifs, EMS, etc.). Le village se trouve à moins de 5 minutes de la sortie d'autoroute de St-Triphon et de l'Hôpital Riviera-Chablais. Deuxième commune du Bas-Valais, Collombey-Muraz se situe à 20 minutes des pistes de ski (domaine des Portes du Soleil et du Lac Léman).Ce bien est vendable comme résidence secondaire ou principale.Vous souhaitez obtenir des précisions, visiter le terrain ? Contactez-moi par téléphone, courriel ou passer nous rencontrer (sur rendez-vous) dans l'une de nos agences du Chablais (Aigle, Collombey-Muraz ou Torgon) et nous vous renseignerons très volontiers. Retrouvez tous nos biens sur www.valimmobilier.ch - estimation gratuite de votre bien, photos professionnelles lumineuses et de qualité, photos aériennes et mise en valeur optimale du bien.Valimmobilier SA freut sich, Ihnen ein neues Projekt für den Bau von 2 modernen Wohnungen in Collombey vorzustellen.In einem sympathischen Quartier von Collombey werden Sie Eigentümer dieser modernen 5.5-Zimmer-Villa im Bauzustand mit Garage und privatem Garten. Das Quartier ist nahe an allen Aktivitäten und weniger als 5 Minuten von der Autobahnausfahrt...

Kosten

Kaufpreis:
CHF 1'150'000

Angaben

Objektkategorie
Kauf
Objektreferenz
c6934c91-7084-4917-92b6-2188540f4f73
PLZ/Ort
1868 Collombey
Region
District de Monthey
Wohnfläche
160 m²
Grundstücksfläche
407 m²
Anzahl Zimmer
5.5
Baujahr
2026

Merkmale und Ausstattung

Balkon
Garage
Parkplatz
Kinderfreundlich

Kontakt

  • Valimmobilier SA
  • Avenue de la Gare 39, 1964, Conthey
  • Nummer Anzeigen

Auch inseriert auf:

homegate.ch