Wohnobjekt

Superbe appartement neuf, grande surface, vue lac et balcon généreux

CHF 2'060'000

 | 

128 m²

 | 

4.5 Zimmer

1071 Chexbres

Superbe appartement neuf, grande surface, vue lac et balcon généreux - Karte
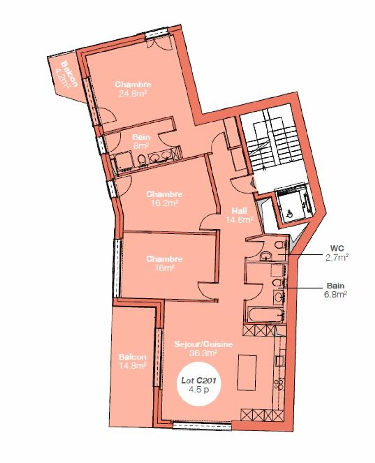
Appartement 4.5 pièces lumineux de 138 m², avec vue dégagée et prestations premium.Cadre idéal pour résidence principale ou secondaire.Idéal pour une famille recherchant confort et luminosité au coeur du Lavaux.2 places de parc souterrain en sus.Au coeur du Lavaux, classé au patrimoine mondial de l'UNESCO, découvrez une promotion exclusive de 14 appartements haut de gamme, répartis sur 3 bâtiments contemporains, offrant une vue spectaculaire sur le lac Léman et les Alpes. Déjà 6 appartements vendus + 1 réservé Plus que 7 lots disponibles - opportunité rareLES ATOUTSAppartements de 3.5 à 6.5 pièces (de 101 à 270 m²)Balcons ou terrasses avec vue panoramiqueGrandes baies vitrées, luminosité exceptionnelleFinitions haut de gamme (cuisines V-ZUG, parquet, matériaux premium)Chauffage au sol par géothermie + panneaux solairesTriple vitrage, isolation performanteAscenseur, ventilation moderne, fibre optique Stationnement2 places de parking souterrain par appartement CHF 40'000.- / la place (en sus)SITUATION IDÉALE - CHEXBRES (Lavaux) Environnement calme entre vignes, lac et montagnes Gare de Chexbres à proximité (liaisons rapides)Vevey à 10 min / Lausanne à ~20 min Commerces à proximité (Coop, Migros Vevey, etc.)Écoles :- École enfantine et primaire à Chexbres- Établissements secondaires accessibles rapidement (Vevey / région)UN CADRE DE VIE UNIQUEEntre nature, vignobles et panorama exceptionnel, ce projet offre une qualité de vie rare en Suisse romande, alliant tranquillité, accessibilité et standing. Demandez le dossier complet et contactez M. Stéphane Séchaud 076/576.73.15 pour plus d'informations sur cette promotion d'exception.

Kosten

Kaufpreis:
CHF 2'060'000

Angaben

Objektkategorie
Kauf
Objektreferenz
9a2c98d9-3467-4cb8-b25d-e08aba1e3fae
PLZ/Ort
1071 Chexbres
Region
Lavaux-Oron
Wohnfläche
128 m²
Anzahl Zimmer
4.5
Etage
2
Baujahr
2027

Merkmale und Ausstattung

Balkon
Lift
Garage
Schöne Aussicht
Parkplatz
Kinderfreundlich
Rollstuhlgängig

Kontakt

  • Alliance Immo
  • Rue du Franc-Castel 10, 1454, L' AUBERSON
  • Nummer Anzeigen

Auch inseriert auf:

homegate.ch