Wohnobjekt

Für kreative Naturgeniesser / Neubau 2025/26

CHF 920'000

 | 

112 m²

 | 

4.5 Zimmer

Bergerstrasse 17, 8570 Weinfelden

Für kreative Naturgeniesser / Neubau 2025/26 - Karte
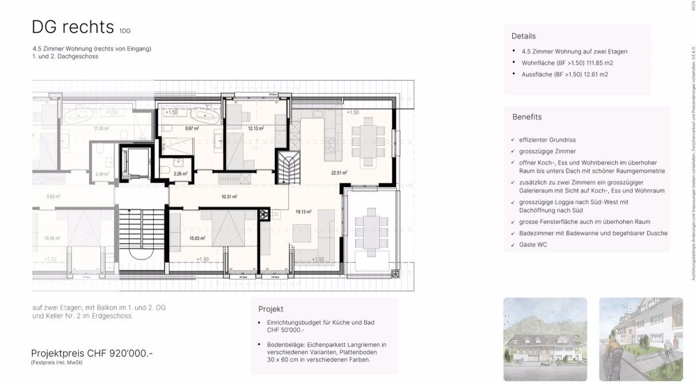
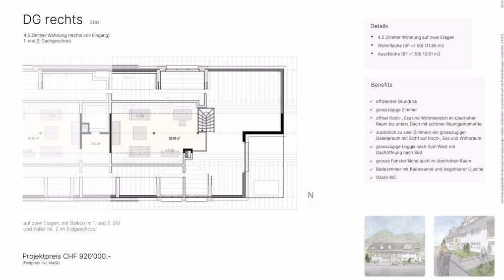
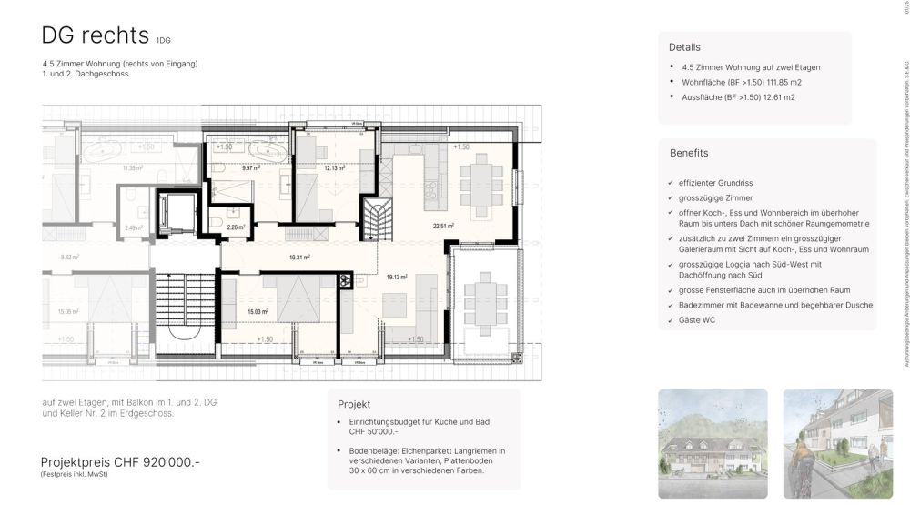
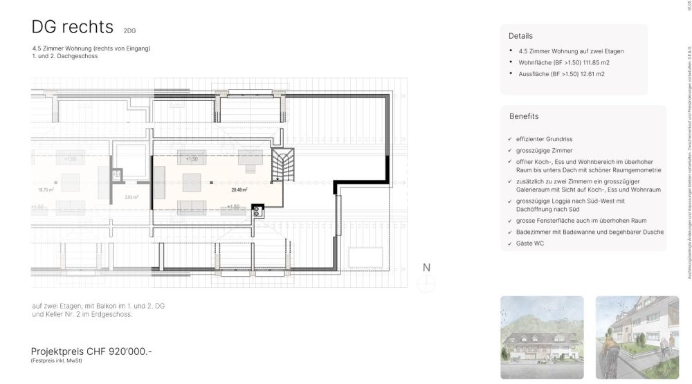
Entdecken Sie diese exklusive 4.5-Zimmer-Dachwohnung in einem brandneuen 4-Familien-Haus an der Bergerstrasse 17 in Weerswilen bei Weinfelden. Mit einer grosszügigen Wohnfläche von 114 m² im 2. Obergeschoss bietet diese moderne Wohnung auf zwei Etagen höchsten Wohnkomfort in ruhiger Lage.
Die Wohnung überzeugt mit:
Grosszügiger Raumaufteilung: Offner Koch-, Ess- und Wohnbereich im überhoher Raum bis unters Dach mit schöner Raumgemetrie
Auf zwei Etagen: zusätzlich zu zwei Zimmern ein grosszügiger Galerieraum mit Sicht auf Wohnraum
Einen Balkon: Für entspannte Stunden im Freien
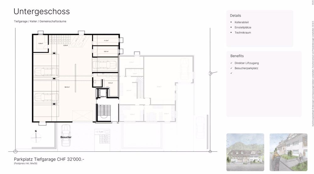
Praktische Ausstattung: Lift im Gebäude und eigene Garage
Ruhige Lage: Geniessen Sie die Stille in dieser friedlichen Umgebung
Lage und Umgebung: Die Wohnung befindet sich in einer ruhigen Wohngegend von Weinfelden, umgeben von grünen Feldern und Landhäusern auf einem Hügel gelegen. Diese idyllische Lage bietet eine perfekte Balance zwischen ländlicher Ruhe und städtischer Erreichbarkeit.
Diese Dachwohnung ist ideal für alle, die eine geräumige, moderne Wohnung in ruhiger Lage suchen. Die Kombination aus praktischer Ausstattung, grosszügigen Räumen und der malerischen Umgebung macht diese Immobilie zu einem besonderen Zuhause.

Kosten

Kaufpreis:
CHF 920'000

Angaben

Objektkategorie
Kauf
Objektreferenz
0f86e450-157d-4860-8301-e0873c958aba
Adresse
Bergerstrasse 17
PLZ/Ort
8570 Weinfelden
Region
Weinfelden
Wohnfläche
112 m²
Anzahl Zimmer
4.5
Etage
2

Merkmale und Ausstattung

Lift
Garage

Kontakt

Sabine Mathis
  • Sabine Mathis
  • Fuchs Wohnbau AG
  • gibt Ihnen gerne Auskunft.
  • Nummer Anzeigen

Auch inseriert auf:

homegate.ch