Publiziert am 29.10.2025.
CHF 860'000
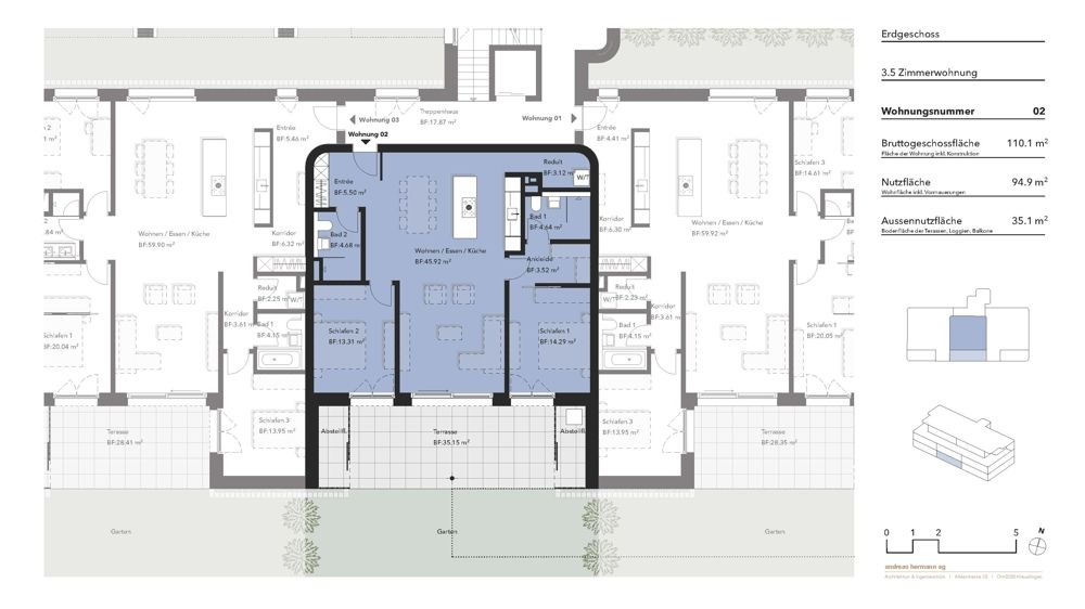
|3.5 Zimmer
Rietäckerstrasse 14, 8500 Frauenfeld
 
  
 Modernes Wohnen mit Nachhaltigkeit und Komfort:
- Acht exklusive Eigentumswohnungen von 3& 189; bis 5& 189; Zimmern
- Nachhaltige Minergie-zertifizierte Bauweise f& 252;r h& 246;chsten Wohnkomfort
- Lichtdurchflutete, grossz& 252;gige R& 228;ume mit durchdachten Grundrissen
- Hochwertige Designerk& 252;chen mit Markenger& 228;ten und K& 252;cheninsel
- Effiziente Luft-Wasser-W& 228;rmepumpe mit Fussbodenheizung
- Optionale Smart-Home-Systeme zur zentralen Steuerung von Licht, Beschattung und Heizung
- Tiefgarage mit Vorbereitung f& 252;r E-Ladestationen
- Moderne Photovoltaikanlage f& 252;r umweltfreundliche Energieversorgung
- Barrierefreier Zugang zur Wohn- und Gemeinschaftsbereiche
- Fahrstuhl f& 252;r bequemen Zugang
Besuchen Sie unsere Website unter http://www.goldinger.ch.
Dort finden Sie ausf& 252;hrliche Informationen, Pl& 228;ne, Bilder und einen virtuellen Rundgang zu unseren Liegenschaften in guter Qualit& 228;t. Bitte fragen Sie uns an, wenn Sie Details der Liegenschaft einsehen wollen und vereinbaren Sie einen Beratungstermin.
Der Kauf dieser Liegenschaft ist f& 252;r die K& 228;ufer provisionsfrei. Grundbuchgeb& 252;hren und Notariatskosten teilen sich K& 228;ufer und Verk& 228;ufer h& 228;lftig. Der Eigent& 252;mer beh& 228;lt sich vor, bei mehreren Kaufinteressenten, an den Meistbietenden zu verkaufen.
Sind Sie Immobilienbesitzer?
Gerne k& 246;nnen Sie auch vorab unsere kostenlose www.online-wertermittlung.ch nutzen und innert wenigen Minuten einen Richtpreis f& 252;r Ihre Immobilie erhalten oder profitieren Sie von hilfreichen Tipps f& 252;r Immobilieneigent& 252;mer unter www.immobilienratgeber.ch.