Wohnobjekt

Nuovo appartamento con grande giardino in elegante residenza di sole 4 unità abitative

CHF 920'000

 | 

130 m²

 | 

4.5 Zimmer

Via El Sgérbi, 6513 Monte Carasso

Nuovo appartamento con grande giardino in elegante residenza di sole 4 unità abitative - Karte
La Residenza 1078 sorgerà in via El Sgérbi, zona molto ben servita e nelle immediate vicinanze dei principali servizi, la Casa comunale dista soltanto 50 metri dalla residenza.
La zona è molto richiesta per la posizione centrale, l’accesso avviene da una piccola strada di quartiere con transito solo per i residenti.
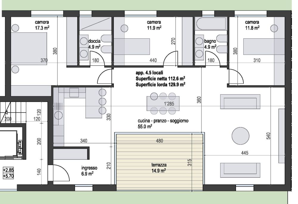
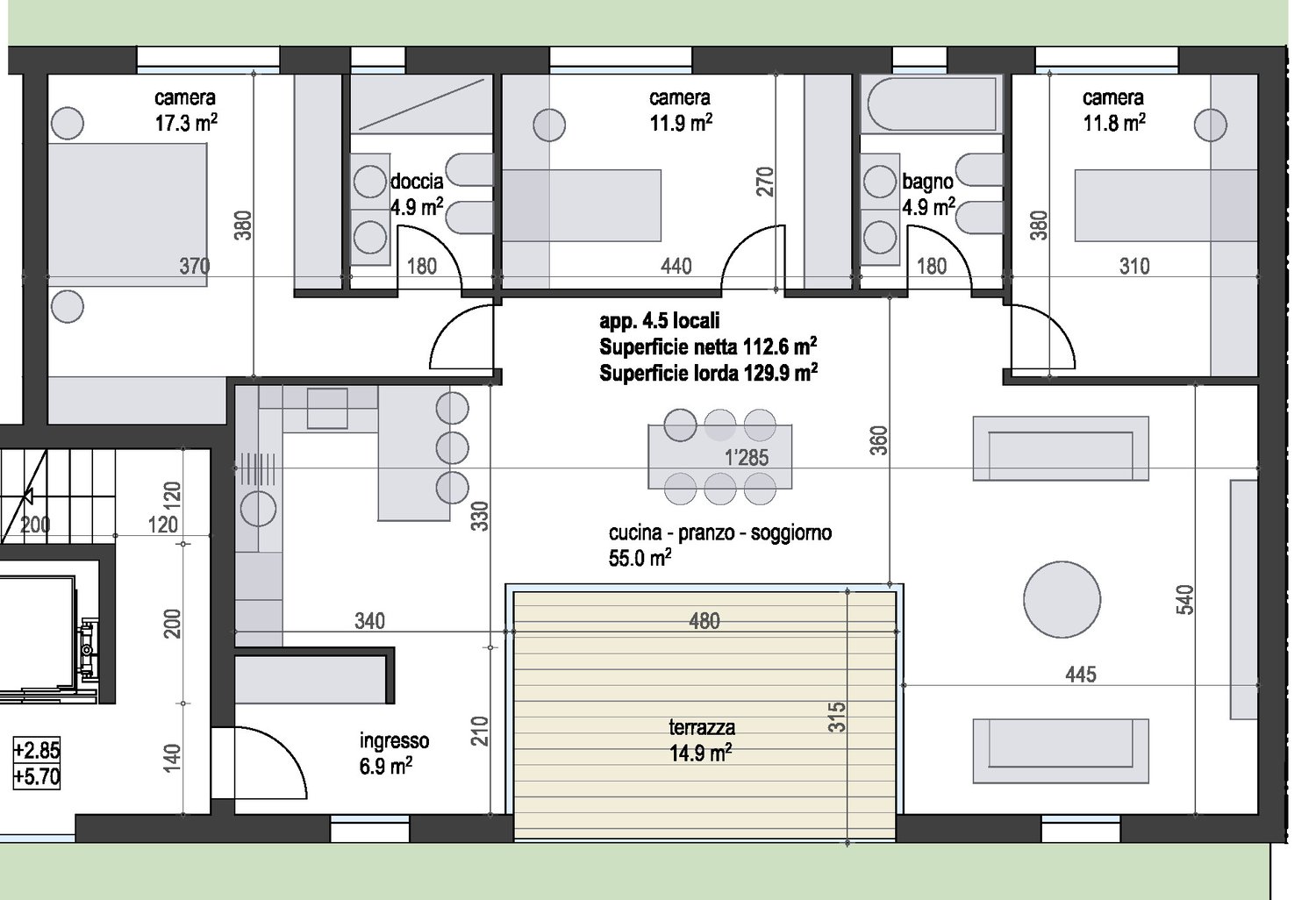
La residenza è composta da soli 4 appartamenti di 4 ½ locali distribuiti due per piano, tra il primo ed il secondo livello, questa caratteristica permette di avere le tre facciate libere ed avere solamente una parete (doppia) in concomitanza con l’appartamento vicino.
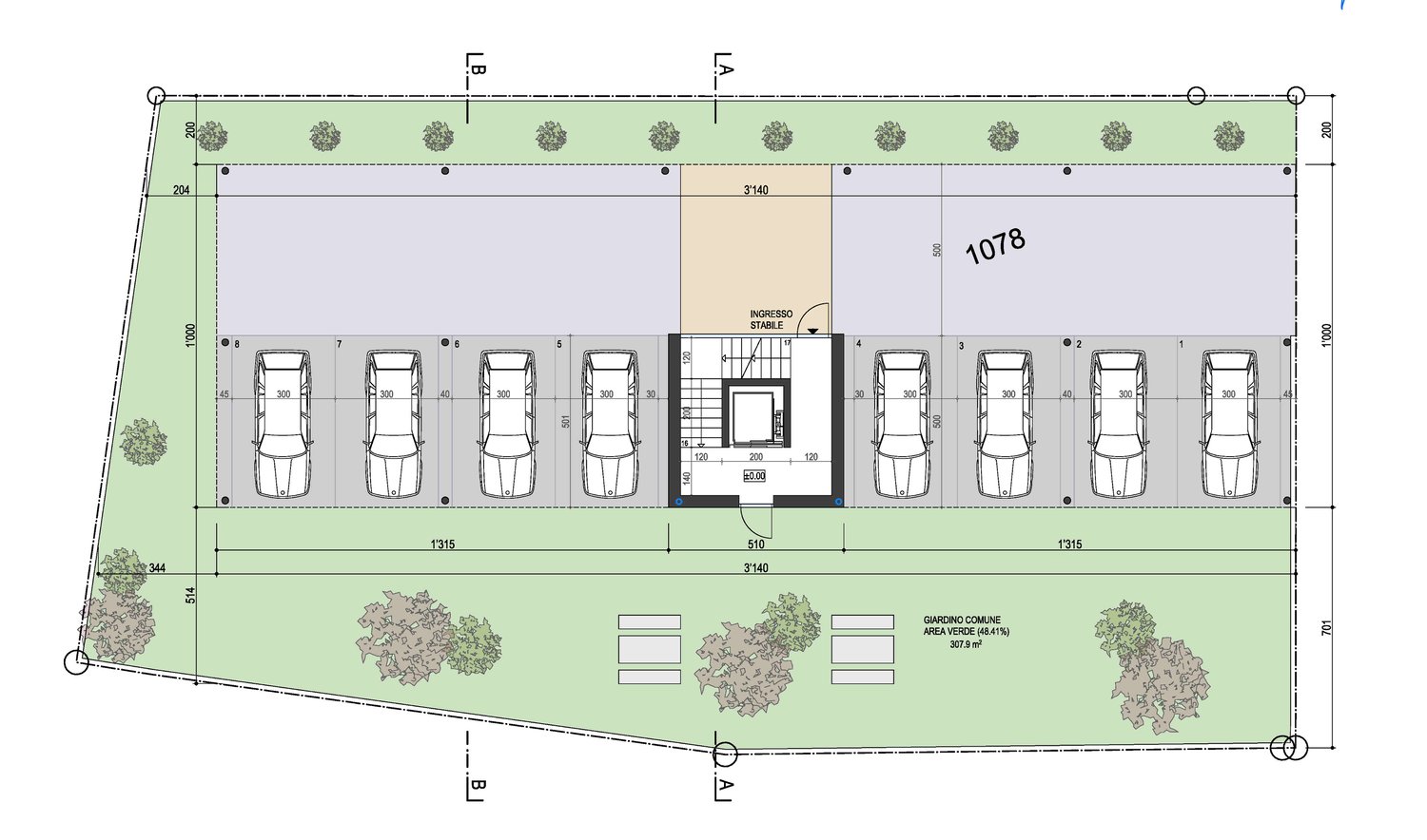
Al livello inferiore, piano terreno, si trovano i posti auto ed i giardini privati.
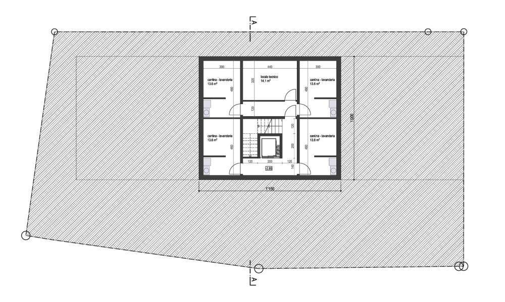
Al piano interrato, comodamente raggiungibile con ascensore, si trovano le cantine in muratura con lavanderia privata ed il locale tecnico.
L’edificio verrà realizzato in stile costruttivo tradizionale, con elementi in beton ed in muratura e con isolazione termica delle facciate.
Particolare attenzione è stata data agli aspetti energetici: Impianto a regolazione individuale per ogni locale, termopompa aria/acqua e distribuzione calore con serpentine a bassa temperatura posate a pavimento e pannelli solari fotovoltaici posati sul tetto.
Gli appartamenti offrono spazi architettonici valorizzati sia dalla tipologia di distribuzione che dalla scelta personale delle rifiniture.
Gli spazi esterni sono garantiti sia dai giardini al piano terreno che dalle terrazze coperte che conferiscono un elevato senso di privacy.
2 posti auto coperti sono compresi nel prezzo.

Kosten

Kaufpreis:
CHF 920'000

Angaben

Objektkategorie
Eigentum
Objektreferenz
f50641f8-0b59-4bd7-a433-32fa7cc83546
Adresse
Via El Sgérbi
PLZ/Ort
6513 Monte Carasso
Region
Bellinzona
Wohnfläche
130 m²
Anzahl Zimmer
4.5
Etage
1
Baujahr
2026

Merkmale und Ausstattung

Balkon
Kabelfernsehen
Lift
Schöne Aussicht
Parkplatz
Kinderfreundlich
Rollstuhlgängig

Kontakt

Claudio Falcetti
  • Claudio Falcetti
  • L'Idea Immobiliare SA
  • gibt Ihnen gerne Auskunft.
  • Nummer Anzeigen

Auch inseriert auf:

homegate.ch