Wohnobjekt

TERRENO CON PROGETTO APPROVATO PER UNA VILLA A GNOSCA

CHF 950'000

 | 

130 m²

 | 

4.5 Zimmer

6525 Gnosca

TERRENO CON PROGETTO APPROVATO PER UNA VILLA A GNOSCA - Karte
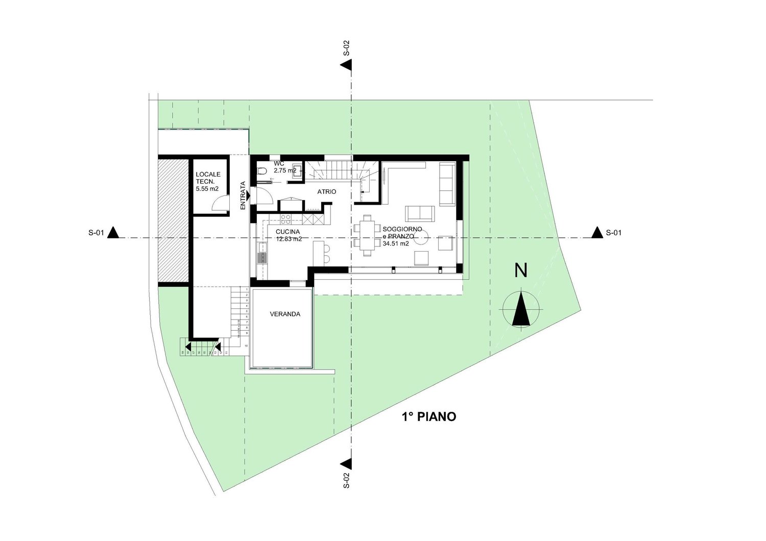
Proponiamo un terreno edificabile di 370 mq con progetto approvato per la realizzazione di una moderna abitazione Kager di 4.5 locali su due piani a Gnosca. Questa soluzione abitativa rappresenta un’opportunità unica per chi sogna una costruzione realizzata su misura e di qualità.Possibilità di personalizzazione delle finiture e della distribuzione degli spazi.Si accede alla proprietà direttamente dall’area posteggi tramite un pianerottolo esterno e varcando la sicura porta blindata gli spazi si dispongono come segue:L’ingresso alla futura abitazione di oltre 130 mq avviene direttamente dall’area posteggi tramite delle scale esterne e un vasto pianerottolo coperto dal quale si accede, sulla sinistra, ad un locale tecnico, sulla destra alla casa e gli spazi interni si dispongono come segue:Al PRIMO PIANO si trova un ampio atrio che porta alla spaziosa zona giorno con cucina open space dalla quale si può accedere ad una grande veranda. A completare il piano superiore si trova un bagno per ospiti con finestra.Il PIANO TERRA è composto da una camera matrimoniale con bagno en suite finestrato e altre due camere, tutte e tre dalle quali si può accedere alla zona esterna divisa tra grandi veranda e giardino. A completare la zona notte si trova un bagno finestrato con vasca.La casa sarà dotata di un impianto di riscaldamento a pavimento alimentato da una pompa di calore aria-acqua, garantendo un’elevata efficienza energetica e un comfort ottimale in ogni stagione.La posizione strategica del terreno permette di godere di una vista mozzafiato sulle montagne circostanti, regalandovi un panorama unico e una sensazione di pace e serenità. Inoltre, la vicinanza ai principali servizi e alle vie di comunicazione rende questa proposta ideale per chi cerca praticità e comfort.Non perdete l’occasione di realizzare la vostra casa dei sogni in un contesto naturale e rilassante, a pochi passi da tutte le comodità.Completano la proprietà 2 posti auto esterni, inclusi nel prezzo esposto.NS/7693

Kosten

Kaufpreis:
CHF 950'000

Angaben

Objektkategorie
Kauf
Objektreferenz
7f764267-838b-4004-9a90-b0e6023f5a88
PLZ/Ort
6525 Gnosca
Region
Bellinzona
Wohnfläche
130 m²
Grundstücksfläche
368 m²
Anzahl Zimmer
4.5
Baujahr
2025

Merkmale und Ausstattung

Balkon

Kontakt

  • METROPOLIS MPV Real Estate Sagl
  • Via Cantonale 43, 6928, Manno
  • Nummer Anzeigen

Auch inseriert auf:

homegate.ch