Wohnobjekt

3733 IN COSTRUZIONE - ULTIMO APPARTAMENTO - 3.5 LOCALI A POCHI PASSI DAL CENTRO STORICO

CHF 750'000

 | 

109 m²

 | 

3.5 Zimmer

6500 Bellinzona

3733 IN COSTRUZIONE - ULTIMO APPARTAMENTO - 3.5 LOCALI A POCHI PASSI DAL CENTRO STORICO - Karte
Consegne FEBBRAIO 2027
Posteggi auto compresi nei prezzi esposti !
-.-.-.-.-.-.-.-.-.-.-.-.-…-
Avvisiamo la stimata clientela che sarà fornita priorità di risposta alle richieste pervenute complete di vostro recapito telefonico mobile.
Wir teilen unseren geschätzten Kunden mit, dass Anfragen, die mit Ihrer Mobiltelefonnummer eingehen, vorrangig beantwortet werden.
-.-.-.-.-.-.-.-.-.-.-.-.-.-.
La moderna palazzina di 15 appartamenti sorge in zona residenziale molto comoda e nelle immediate vicinanze di tutti i principali servizi.
A pochi passi si raggiungono il centro storico cittadino ed il Viale della Stazione.
Struttura pensata e progettata nei minimi particolari, tenendo conto delle esigenze di chi desidera vivere in CITTÀ, ma allo stesso tempo in un contesto TRANQUILLO nelle immediate vicinanze del VERDE.
Costruzione realizzata in stile tradizionale con elementi in calcestruzzo, muratura con isolamento termico delle facciate.
Rispetta i più alti aspetti energetici, dispone di un impianto a termopompa aria/acqua con distribuzione del calore tramite serpentine posate a pavimento con regolazione individuale in ogni locale. Impianto fotovoltaico sul tetto per la produzione di energia.
15 appartamenti, ripartiti su 3 piani identici + il piano attico.
Appartamenti luminosi
da 2 1/2 a 5 1/2 locali.
Superfici di vendita da 54 a 183 m2, terrazze coperte da 20 a 50 m2, lavanderie private all'interno di ogni appartamento con predisposizione per la propria lavatrice e/o asciugatrice.
TIPOLOGIA - 2.5 LOCALI -
Superficie appartamento netta 43 m2 + terrazza coperta di 20 m2 + cantina di 8 m2
1 Posteggio (scoperto) incluso nel prezzo .
Prezzi a partire da CHF 395'000.-- venduti
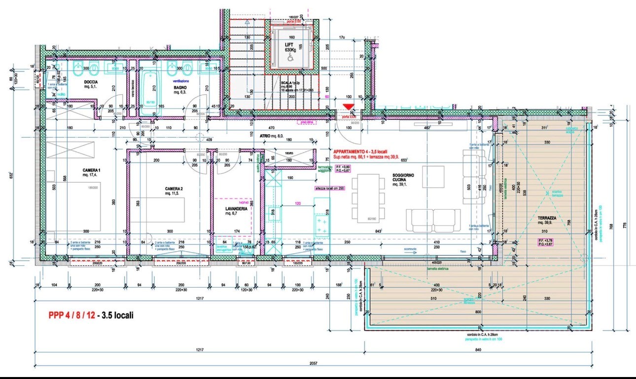
TIPOLOGIA - 3.5 LOCALI Superficie appartamento netta 86 m2 + terrazza coperta di 40 m2 + cantina di 9 m2
2 Posteggi INCLUSI - Prezzi a partire da CHF 750'000 ( trattabile )
TIPOLOGIA - 4.5 LOCALI / ATTICO
Piano attico - Tipologia 4.5 locali a CHF 960'000.--
( 2 POSTEGGI INCLUSI)
Le rifiniture interne degli appartamenti sono a libera scelta della clientela.
Altezza locali abitativi 2.50 m.
Compresi nei prezzi indicati i posteggi interni ed esterni assegnati ad ogni appartamento con la predisposizione per la ricarica di auto elettriche.
Posteggio ospiti + motociclette / biciclette a disposizione gratuita dei condomini.
La residenza sarà inoltre circondata da una vasta area verde di svago e relax attrezzata con tavoli panchine e giochi per bambini.
INFORMAZIONI / VISITA / VENDITA
IMMOBILIARE TETTAMANTI
[email protected]

Verfügbarkeit

Verfügbar ab:
1. Februar 2027

Kosten

Kaufpreis:
CHF 750'000

Angaben

Objektkategorie
Kauf
Objektreferenz
c339428b-5e2f-4024-976e-e09116c32ace
PLZ/Ort
6500 Bellinzona
Region
Bellinzona
Wohnfläche
109 m²
Anzahl Zimmer
3.5
Etage
EG
Baujahr
2025

Merkmale und Ausstattung

Balkon
Kabelfernsehen
Lift
Schöne Aussicht
Parkplatz
Kinderfreundlich
Rollstuhlgängig

Kontakt

Sacha TETTAMANTI
  • Sacha TETTAMANTI
  • Immobiliare Tettamanti
  • gibt Ihnen gerne Auskunft.
  • Nummer Anzeigen

Auch inseriert auf:

homegate.ch