Wohnobjekt

Modern wohnen in Diepoldsau - entdecken Sie schmitterpark.ch

CHF 770'000

 | 

100 m²

 | 

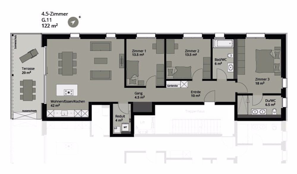
3.5 Zimmer

Schmitterstrasse 5A (Haus D), 9444 Diepoldsau

Modern wohnen in Diepoldsau - entdecken Sie schmitterpark.ch - Karte
Herzlich willkommen im «schmitterpark.ch»Infoanlass auf dem BauplatzDienstag, 14. April 2026geführte Rohbaubesichtigung um 17.30 und 18.00 Uhrgutes Schuhwerk erforderlichBauplatz Schmitterstrasse 7a, DiepoldsauIn der einladenden Gemeinde Diepoldsau entstehen 62 Eigentumswohnungen mit einem Wohnungsmix aus 2.5 bis 5.5 Zimmern.Die Nähe zu diversen Verkehrsanbiendungen, Einkauf und Schulen bieten idealen Wohnraum für Alleinstehende, Paare oder Familien. Durchdachte Grundrisse mit hellen Wohnräumen, edlen Parkettböden, modernen Küchen und eigenen Waschtürmen in den Wohnungen sorgen für ein optimales Wohngefühl.In der gemeinsamen Tiefgarage kann bei Bedarf eine Elektroladestation für Elektrofahrzeuge montiert werden.Verkaufspreise:- 2½-Zimmer-Wohnungen ab CHF 570'000.00- 3½-Zimmer-Wohnungen ab CHF 770'000.00- 4½-Zimmer-Wohnungen ab CHF 860'000.00- 5½-Zimmer-Attikawohnungen ab CHF 1'175'000.00 - Gewerbe ab CHF 250'000.00- Disponibelraum ab CHF 31'000.00- Tiefgaragenplatz ab CHF 39'000.00Sind Sie interessiert?Gerne senden wir Ihnen die detaillierten Verkaufsunterlagen zu.Bei Fragen oder zur Vereinbarung eines persönlichen Besprechungstermins steht Ihnen Frau Janine Lekaj-Karge (Tel. 071 844 06 91) gerne zur Verfügung.

Kosten

Kaufpreis:
CHF 770'000

Angaben

Objektkategorie
Kauf
Objektreferenz
57dd47ad-b96b-4cce-97da-9fd4352393aa
Adresse
Schmitterstrasse 5A (Haus D)
PLZ/Ort
9444 Diepoldsau
Region
Rheintal
Wohnfläche
100 m²
Anzahl Zimmer
3.5
Etage
1
Baujahr
2026

Merkmale und Ausstattung

Haustiere erlaubt
Balkon
Lift
Garage
Rollstuhlgängig
Minergie

Kontakt

Janine Lekaj-Karge
  • Janine Lekaj-Karge
  • Fortimo AG
  • gibt Ihnen gerne Auskunft.
  • Nummer Anzeigen

Auch inseriert auf:

homegate.ch