Wohnobjekt

La Grange de Moulin Roget - Promotion de 2 villas contigües - Lot A

CHF 2'280'000

 | 

266 m²

 | 

8 Zimmer

Route du Moulin-Roget 7, 1237 Avully

La Grange de Moulin Roget - Promotion de 2 villas contigües - Lot A - Karte
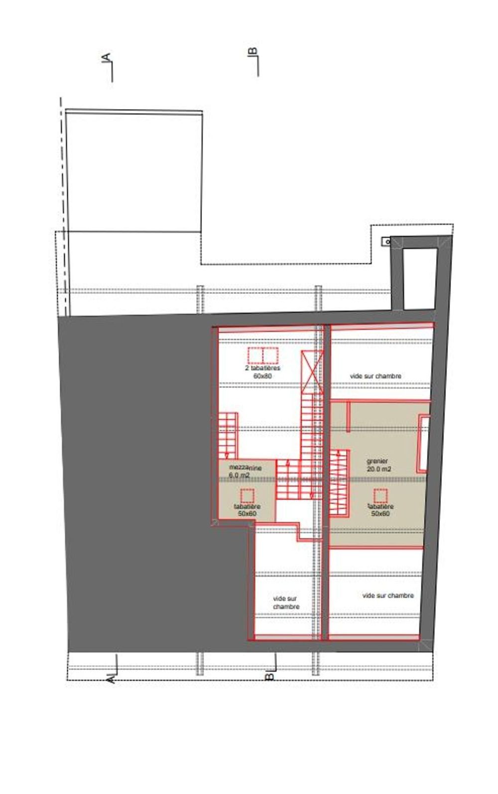
Située au coeur du village d'Avully, cette nouvelle promotion, présentée en collaboration avec Friedli Consulting, est le fruit de la rénovation d'une ancienne grange. Elle se composera de deux maisons contigües sur deux niveaux avec combles, conformes aux normes HPE (Haute Performance Énergétique), à vendre sur plans.Mariant l'authenticité de l'ancien avec des touches modernes, ce projet saura vous séduire par son cadre paisible et verdoyant.Édifiée sur une parcelle de 465 m2, la villa A offrira une surface habitable de 266 m2, répartie sur 2 niveaux et combles, dont les pièces seront réparties comme suit :REZ-DE-CHAUSSEEHall d'entréeCuisine ouverte sur la salle-à-mangerSalon avec accès terrasse et jardinWC visiteursChaufferie / buanderiePREMIER ETAGEGrande suite parentale avec salle-de-bainsChambre avec salle d'eau attenanteChambre avec salle-de-bainsSpacieuse salle de jeux COMBLESMezzanineGrenierLa villa disposera de deux places de parking situées devant l'entrée, ainsi que d'un espace dédié pour les vélos et les motos.Les équipements seront à faible consommation, en classe A++ selon les critères Minergie-A et l'intérieur pourra être personnalisé selon les goûts de l'acquéreur, avec un budget conséquent prévu à cet effet.Le projet fait l'objet d'une autorisation en force et la livraison est prévue pour 2026.Remarque : les images et plans sont présentés à titre illustratif et ne sont pas contractuels. Seuls le descriptif de la construction et le contrat de construction du promoteur seront considérés comme faisant foi.

Kosten

Kaufpreis:
CHF 2'280'000

Angaben

Objektkategorie
Eigentum
Objektreferenz
3207b01e-da62-4c35-92d4-2ace1b4f7fa7
Adresse
Route du Moulin-Roget 7
PLZ/Ort
1237 Avully
Region
Canton de Genève
Wohnfläche
266 m²
Grundstücksfläche
465 m²
Anzahl Zimmer
8
Baujahr
2026

Merkmale und Ausstattung

Parkplatz
Minergie

Kontakt

  • Froidevaux Immobilier SA
  • Boulevard de Grancy 32, 1006, Lausanne
  • Nummer Anzeigen

Auch inseriert auf:

homegate.ch