Wohnobjekt

Exklusive Wohnung mit hoher Energieeffizienz und unverbaubarer Aussicht.Neue Preise! - W2

keine Preisangabe

 | 

86 m²

 | 

3.5 Zimmer

Neusatzweg 15, 4106 Therwil

Exklusive Wohnung mit hoher Energieeffizienz und unverbaubarer Aussicht.Neue Preise! - W2 - Karte
Ein Leben zwischen der Hektik des Alltags und der Ruhe der Natur.
Wohnen Sie gerne ruhig und doch zentral?
Wollen Sie ihr Heim individuell gestalten?
Dann sind Sie am Neusatzweg an der richtigen Adresse.
Exklusive, nachhaltige Gartenwohnung in Neubau mit hoher Energieeffizienz und innovativem Finanzierungskonzept! Sie gestalten den Kaufpreis mit!
An einmaliger, exklusiver Lage im Leimental in Therwil entstehen auf einem Plateau mit unverbaubarem Talblick ein hochwertiges Mehrfamilienhaus mit insgesamt 8 Eigentumswohnungen und einer Einstellhalle. Die Gebäude sind gegen Süden ausgerichtet und von Grünräumen umgeben.
Sämtliche Wohnungen in den Erd- und Obergeschossen erhalten Balkone und Wintergärten. Den Erdgeschosswohnungen ist zudem ein Privatgarten zugeordnet. Die Attikawohnungen verfügen über grosszügige Terrassen. Die raumhohen Fenster und Türen erhöhen im Zusammenspiel mit einer Komfortlüftung den Wohnkomfort. Desweiteren unterstützen sie die architektonische Konzeption der Helligkeit, Grosszügigkeit und Verbindung von Innen- und Aussenraum. Die festgelegten Positionierungen der Öffnungen in der Fassade gliedern die äussere Erscheinung der Gebäude und ermöglichen eine Vielfalt an individuellen Grundrissanpassungen.
Ebenfalls ermöglicht die reduzierte Tragstruktur eine Vielzahl an Optionen der individuellen Grundrisseinteilung. An die offenen Wohn- und Essbereiche gliedern sich Balkone oder Aussensitzplätze. Hier hat man einen direkten Blick auf die Umgebung und die intensive Bepflanzung, welche ebenfalls als Sichtschutz dient und die Bewohner vor den Blicken anderer abschirmt. Die Umgebung wird durch die Natürlichkeit der Stein- und Holzfassade unterstrichen und aufgegriffen, somit fügen sich die Wohnhäuser harmonisch in das Ortsbild ein.
Jede der Wohnungen verfügt über ein seperates WC mit Dusche, einen Abstellraum und einem Wintergarten, sowie einem Kellerabteil und Hobbyraum (voll ausgebaut und beheizt) im Untergeschoss. Anschlüsse für je eine Waschmaschine und einem Tumbler sind in der Wohnung vorhanden.
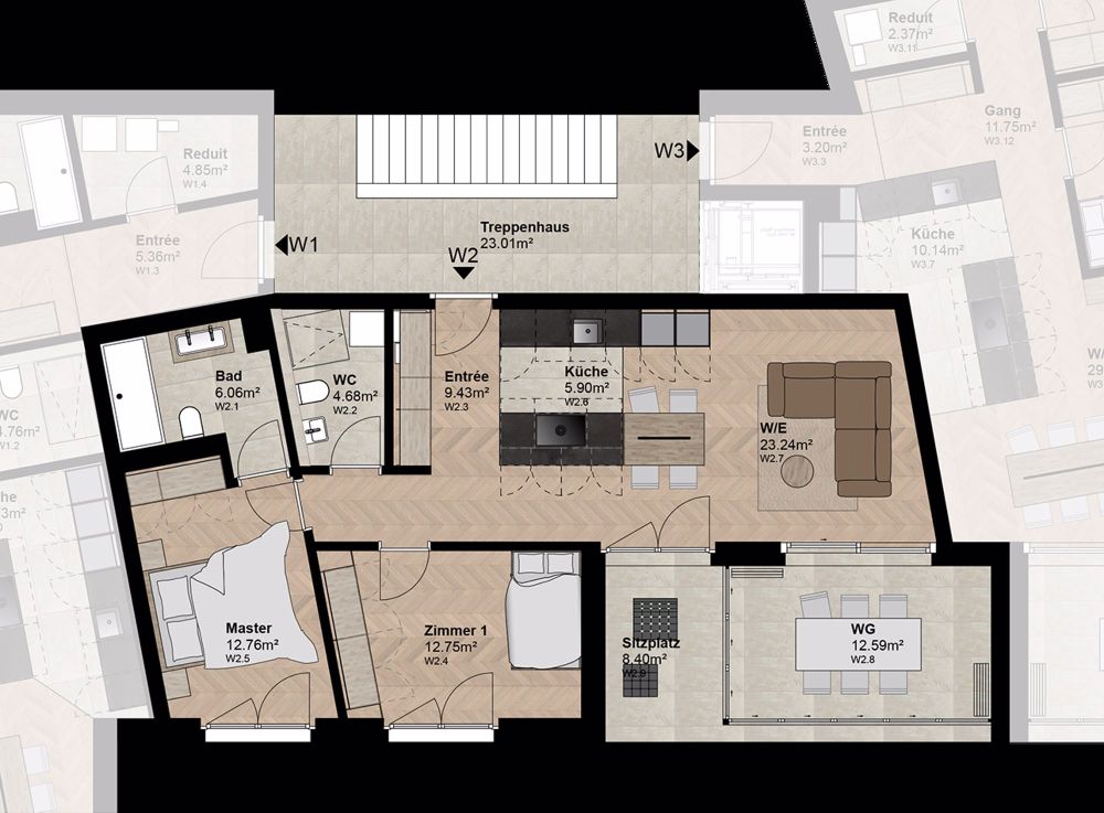
Die Wohnung W2 mit 3,5 Zimmern hat eine Nettowohnfläche von ca. 86.35qm und bietet ein überdurchschnittlich hohes Ausbaubudgets. Die Ausstattung der Wohnungen in Hinsicht auf Bodenbeläge, Wandgestaltung, Bäder- und Küchenausstattung werden vom Käufer aktiv mitbestimmt. Dabei dient die Architektenauswahl als Vorschlag und ist Grundlage der einzelnen Budgetpositionen. Individuelle Wünsche und Anpassungen sind jedoch möglich. Der Wintergarten mit 12.48qm, ein Sitzplatz mit 5.85 qm und ein Garten mit 75.00 qm runden diese grosszügige Wohnung ab.
Ein Autostellplatz in der zugehörigen Einstellhalle ist für die Wohnung W2 verfügbar. Der Stellplatz verfügt über einen Elektroanschluss und einer Photovoltaikanlage. Kosten pro Stellplatz 60'000 CHF.
Baubewilligung liegt vor
Baustart voraussichtlich 2026
Weitere detaillierte Informationen auf Anfrage.
Kontakt:
Herr Giovanni Ferrara
078 866 90 68
Mail: [email protected]

Verfügbarkeit

Verfügbar ab:
1. Oktober 2027

Kosten

Kaufpreis:
keine Preisangabe

Angaben

Objektkategorie
Kauf
Objektreferenz
d1fe7cc8-1ac1-4204-ad6e-873db7bbf2f0
Adresse
Neusatzweg 15
PLZ/Ort
4106 Therwil
Region
Arlesheim
Wohnfläche
86 m²
Anzahl Zimmer
3.5
Etage
EG
Baujahr
2026

Merkmale und Ausstattung

Balkon
Lift
Garage
Kinderfreundlich
Rollstuhlgängig

Kontakt

Herr Giovanni Ferrara
  • Herr Giovanni Ferrara
  • Ferrara Consulting GmbH
  • gibt Ihnen gerne Auskunft.

Auch inseriert auf:

homegate.ch