Wohnobjekt

Die clevere Alternative zur Wohnung

CHF 777'000

 | 

90 m²

 | 

3.5 Zimmer

Mittlerer Boden, 5326 Schwaderloch

Die clevere Alternative zur Wohnung - Karte
Kostengünstiger Einstieg in die eigenen vier Wände.
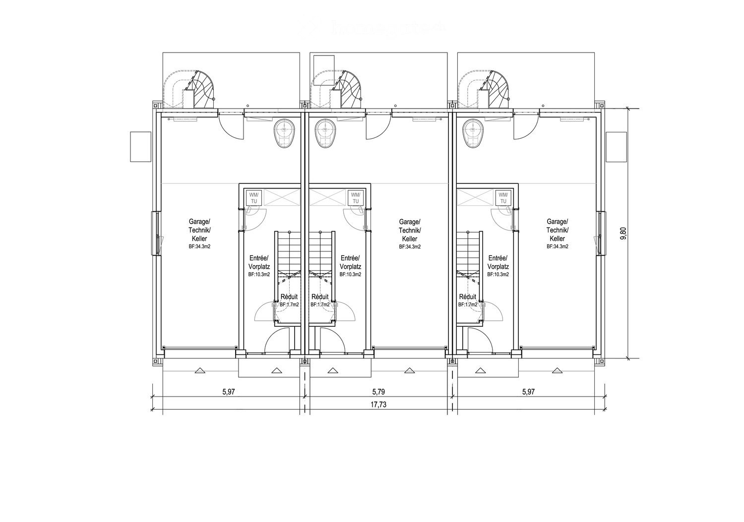
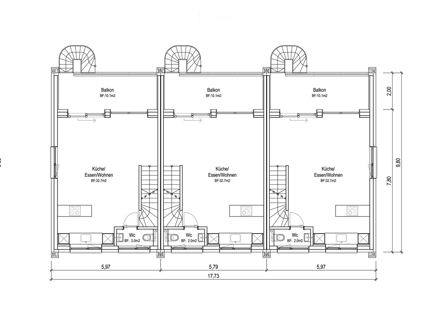
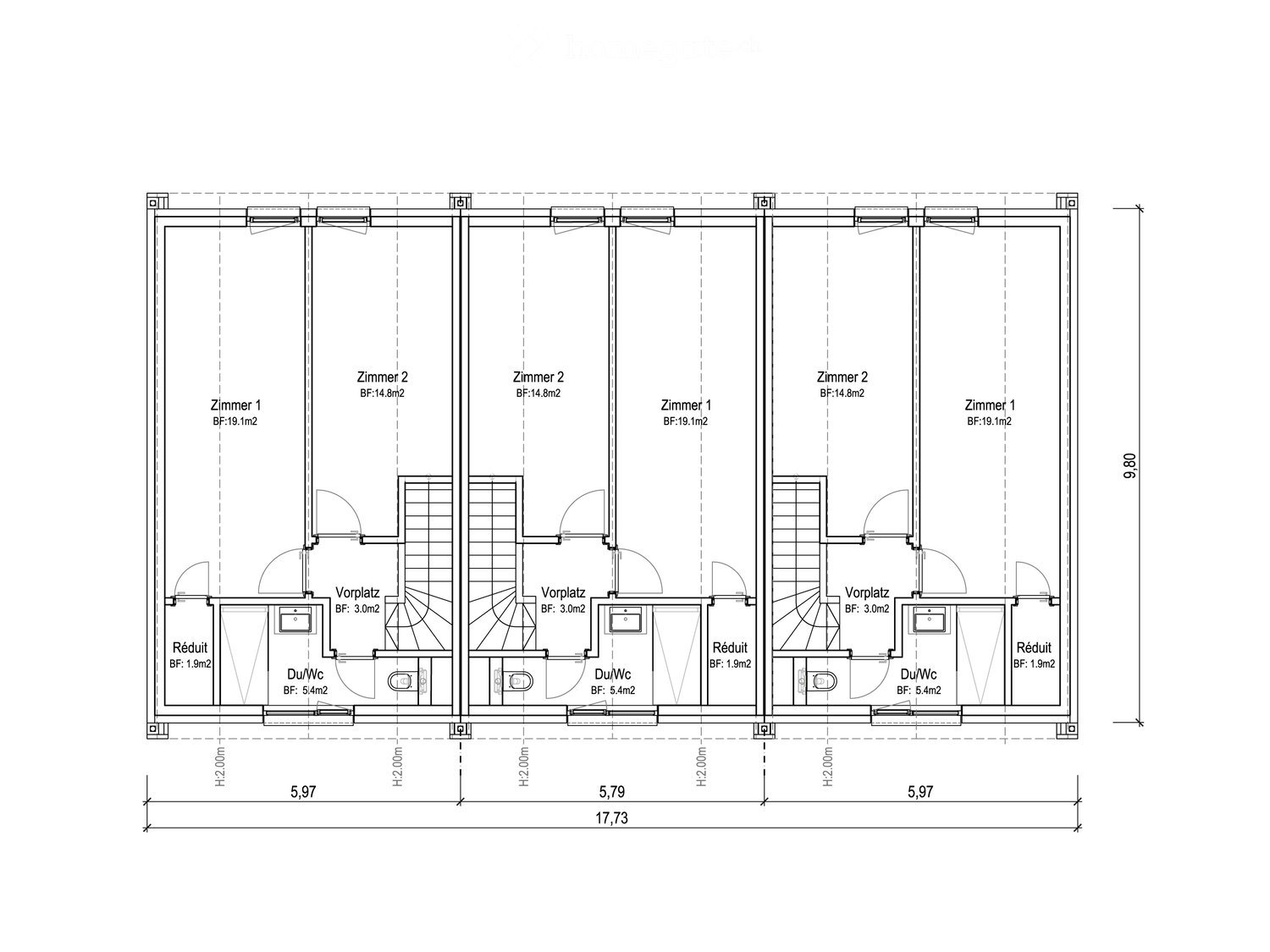
Die drei projektierten Reiheneinfamilienhäuser befinden sich in ruhiger, familienfreundlicher Wohnlage und verbinden moderne Architektur mit maximaler Funktionalität. Mit je rund 90 m² Wohnfläche und 44 m² Nutzfläche auf drei Geschossen bieten sie:
Erdgeschoss: Garage mit direktem Zugang zum Eingangsbereich und Garten
Obergeschoss: Offener Wohn‑/Essbereich mit integrierter Küche und direktem Zugang zum privaten Garten
Dachgeschoss: Flexibler Rückzugsraum mit einem Duschbad und zwei Zimmern, ideal als Elternsuite, Arbeitszimmer oder Kinderzimmer
Der hohe Ausbau­standard in Küche und Sanitär, helle, grosszügige Fensterfronten und praktische Einbauschränke sorgen für langanhaltenden Wohnkomfort. Individuelle Aus- und Änderungswünsche können je nach Baufortschritt berücksichtigt werden.
Ein perfektes Zuhause für Leute, die Wert auf ein zeitgemässes Wohnen mit kleinem Garten legen!
Schwaderloch ist eine ländlich geprägte Gemeinde im Bezirk Laufenburg, im Kanton Aargau, idyllisch am Ufer des Rheins gelegen. Die ruhige Ortschaft bietet viel Lebensqualität, umgeben von Natur und mit direkter Nähe zur deutschen Grenze. Die Gemeinde ist geprägt von einem familiären Charakter, einer intakten Dorfgemeinschaft und einem hohen Erholungswert.
Dank gut ausgebauter Verkehrsverbindungen – insbesondere durch die Nähe zu Laufenburg und Waldshut – ist Schwaderloch auch für Pendler attraktiv. Die Grundschule im Ort gewährleistet eine wohnortsnahe Bildung für Kinder im Primarschulalter, während weiterführende Schulen in den Nachbargemeinden problemlos erreichbar sind.
Für Natur- und Sportbegeisterte bietet die Umgebung zahlreiche Möglichkeiten: Spazierwege entlang des Rheins, Radstrecken durch die Aargauer Landschaft und ruhige Waldgebiete mit Grillplätzen laden zum Entspannen und Erholen ein. Auch die Nähe zum Schwarzwald auf der deutschen Seite eröffnet viele Freizeitoptionen.

Verfügbarkeit

Verfügbar ab:
1. Oktober 2026

Kosten

Kaufpreis:
CHF 777'000

Angaben

Objektkategorie
Kauf
Objektreferenz
b7c9a38c-ec0a-438f-af2d-48d6084559fe
Adresse
Mittlerer Boden
PLZ/Ort
5326 Schwaderloch
Region
Laufenburg
Wohnfläche
90 m²
Anzahl Zimmer
3.5
Baujahr
2026

Merkmale und Ausstattung

Balkon
Garage
Parkplatz
Kinderfreundlich

Kontakt

Top-Haus AG / Roland Richy
  • Top-Haus AG / Roland Richy
  • gibt Ihnen gerne Auskunft.
  • Nummer Anzeigen

Auch inseriert auf:

homegate.ch