Wohnobjekt

Neues Wohnprojekt Mirador in der Via Tesserete

CHF 2'050'000

 | 

142 m²

 | 

4.5 Zimmer

Via Tesserete 64, 6900 Lugano

Neues Wohnprojekt Mirador in der Via Tesserete - Karte
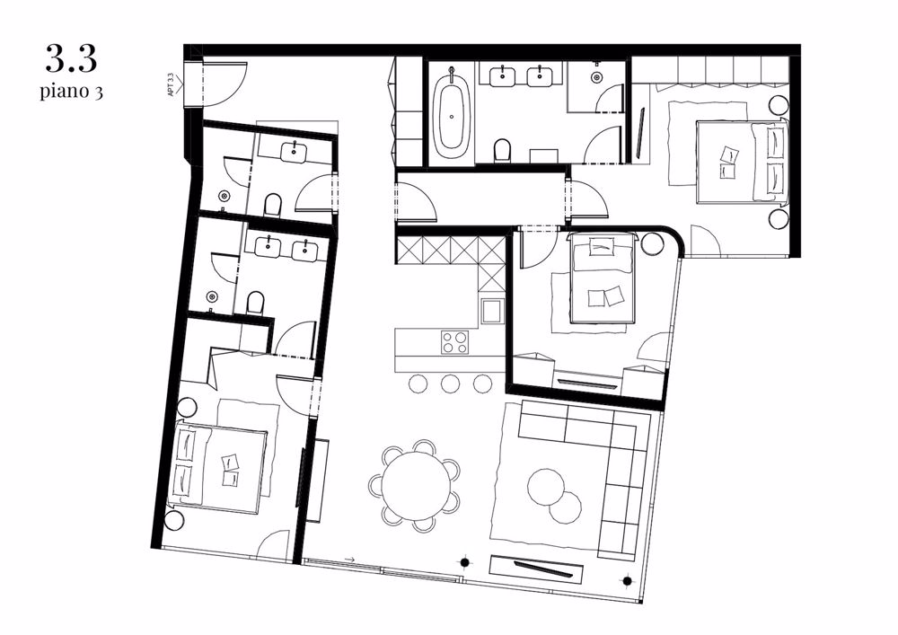
WWW.RESIDENZAMIRADOR.CH Die Residenza Mirador ist das neue architektonisch-wohnwirtschaftliche Projekt der NOCASA Baumanagement AG in Zusammenarbeit mit dem Studio Mino Caggiula Architects. Die Residenz befindet sich in Lugano, in der Via Tesserete 64, auf einem terrassierten Gelände mit 8 Ebenen für insgesamt 44 Wohnungen verschiedener Typen: 2,5, 3,5 und 4,5 Zimmer mit einer Verkaufsfläche von ca. 80 m2 bis 272 m2. Ein privilegierter Standort, der es ermöglicht, leicht jeden Service zu erreichen, aber gleichzeitig vollständig in die umgebende Natur integriert zu sein. Die Wohnungen sind so konzipiert, dass sie eine atemberaubende Panoramaaussicht bieten. Diese Residenz erfüllt die Anforderungen der anspruchsvollsten Kunden, mit einer anspruchsvollen Architektur, hochwertigen Ausführungen, prestigeträchtigen Gemeinschaftsbereichen, darunter eine innere und äußere Schwimmhalle, ein Spa und ein großes Fitnessstudio. Die Wohnung Nr. 3.3 im dritten Stock der Residenza Mirador besteht aus 4,5 Zimmern: -großer Wohnbereich mit offener Küche und großen Fenstern -3 Schlafzimmer -3 Badezimmer -teilweise überdachte Terrasse von 75 m2 -privates Wasch- und Kellergeschoss auf dem gleichen Stock Die Parkplätze in der Garage können zum Preis von 65.000 CHF pro Stück erworben werden. Wohnung 3.3 Wohnung: 141,6 m2 Terrasse: 74,9 m2 Garten: 26,2 m2 Keller: 25,2 m2 Verkaufsfläche: 194,4 m2 Preis: 2'050'000 CHF

Verfügbarkeit

Ab Sofort

Kosten

Kaufpreis:
CHF 2'050'000

Angaben

Objektkategorie
Eigentum
Objektreferenz
fdc94d85-bf6e-4f17-9865-d9a621a0980d
Adresse
Via Tesserete 64
PLZ/Ort
6900 Lugano
Region
Lugano
Wohnfläche
142 m²
Anzahl Zimmer
4.5
Etage
3
Baujahr
2024

Merkmale und Ausstattung

Balkon
Lift
Garage
Schöne Aussicht
Kinderfreundlich
Minergie

Kontakt

  • 6900, Lugano
  • Nummer Anzeigen

Auch inseriert auf:

homegate.ch