Wohnobjekt

APPARTAMENTO 2.5 LOCALI IN COSTRUZIONE A BIASCA

CHF 320'000

 | 

45 m²

 | 

2.5 Zimmer

6710 Biasca

APPARTAMENTO 2.5 LOCALI IN COSTRUZIONE A BIASCA - Karte
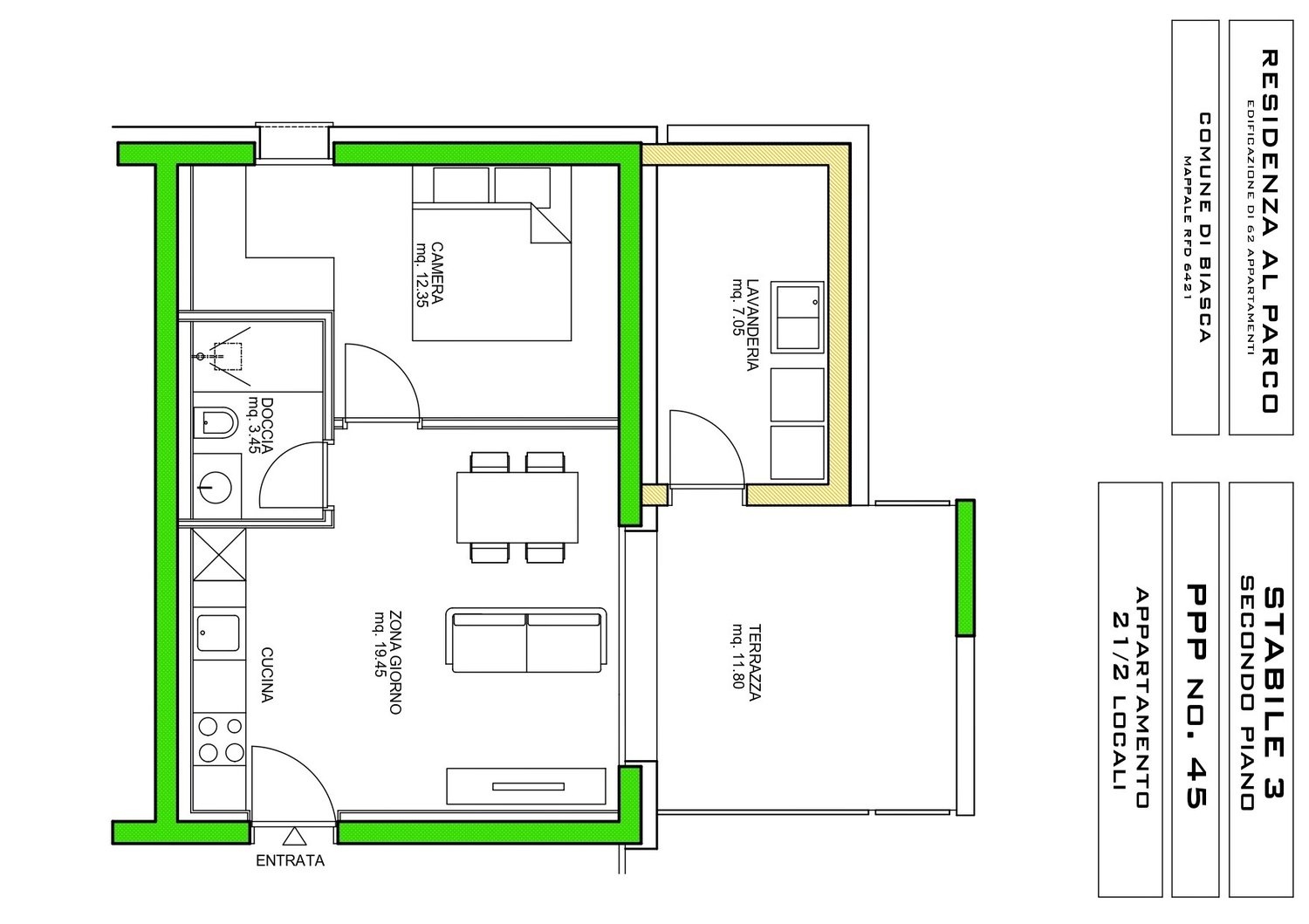
Proponiamo in vendita un nuovo appartamento di 2.5 locali a Biasca, con una superficie lorda di circa 45 mq, situato al secondo piano di una moderna palazzina di cinque livelli, la cui ultimazione è prevista nel 2026.L’abitazione si apre su un luminoso soggiorno con cucina moderna a vista ed accesso diretto al terrazzo di 11mq, uno spazio funzionale e ben organizzato, ideale per chi cerca comfort e praticità in un ambiente contemporaneo. La zona notte comprende una camera da letto accogliente, mentre il bagno è dotato di doccia e rifiniture moderne.Dal terrazzo, perfetto per momenti di relax all’aperto vi è l’accesso alla lavanderia privata interna di 8 mq, un valore aggiunto che garantisce comodità e indipendenza nella gestione quotidiana.Dal punto di vista tecnico, l’appartamento è dotato di infissi in alluminio con tripli vetri, che assicurano un eccellente isolamento termico e acustico. Il riscaldamento è alimentato tramite teleriscaldamento, con distribuzione del calore attraverso serpentine a pavimento, per un comfort abitativo uniforme ed efficiente dal punto di vista energetico.Inserito in un contesto strategico e ben servito, vicino a scuole, negozi, stazione e principali collegamenti, l’immobile unisce tranquillità residenziale e comodità, a pochi minuti da tutti i servizi.Completano l’offerta una cantina ed un comodo posteggio in autorimessa dal valore di 30’000.- CHF, escluso dal prezzo di vendita.FGS/17095

Kosten

Kaufpreis:
CHF 320'000

Angaben

Objektkategorie
Eigentum
Objektreferenz
130ecf84-5a6c-42f2-8cc6-bf4bc0a632e5
PLZ/Ort
6710 Biasca
Region
Distretto di Riviera
Wohnfläche
45 m²
Anzahl Zimmer
2.5
Etage
2
Baujahr
2026

Merkmale und Ausstattung

Haustiere erlaubt
Balkon
Rollstuhlgängig

Kontakt

  • METROPOLIS MPV Real Estate Sagl
  • Via Cantonale 43, 6928, Manno
  • Nummer Anzeigen

Auch inseriert auf:

homegate.ch